主要道路沿い 広々店舗事務所
| 物件名
							 所在地  | 
							面積
							 間取り 所在階  | 
							築年数
							 方位  | 
							賃料
							 管理費等 共益費  | 
							敷金
							 保証金 礼金  | 
							種別
							 構造  | 
						
|---|---|---|---|---|---|
| 魚沼市田川 事業用貸店舗事務所 新潟県魚沼市田川369-7  | 150.14㎡ (45.41坪) - 1階  | 27年 -  | 27.5万円 なし なし  | 3ヶ月 なし 1ヶ月  | 店舗 鉄筋  | 
						
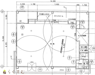
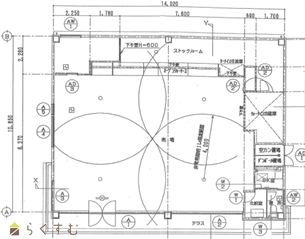
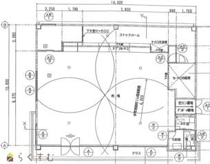
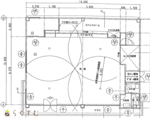
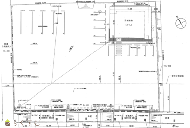
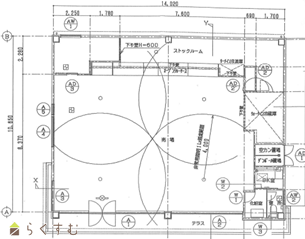
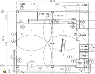
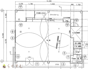
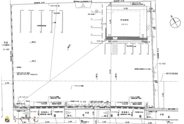
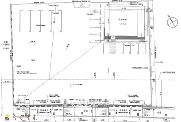
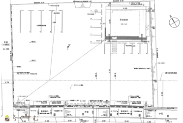
| 外観 | 間取り | 
|---|---|
								![]() ※画像クリックで拡大表示  | 
							
								![]() ※画像クリックで拡大表示 間取り図 
							 | 
						
| 詳細画像 | |
| 
								 | 
						|
| 旧コンビニエンスストアの建物となります | |||
| 物件コード | 00041-100614 | ||
|---|---|---|---|
| 物件名 | 魚沼市田川 事業用貸店舗事務所 | ||
| 交通 | 駅:上越線 北堀之内駅から徒歩19分、バス:堀之内病院前から徒歩22分 | ||
| 所在地 | 新潟県魚沼市田川369-7 | ||
| 物件種別 | 店舗 | ||
| 総戸数 | 1戸 | ||
| 構造 | 鉄筋 | 階建 | 地上1階建 | 
| 所在階/階数 | 1階/1階 | 号室 | - | 
| 面積 | 150.14㎡ /45.41坪 | 方位 | - | 
| 間取り | - | ||
| 賃料 | 27.5万円/月
								
								 | 
							管理費 | - | 
| 礼金 | 1ヶ月
								
								 | 
							敷金 | 3ヶ月
								
								 | 
						
| ほか初期費用 | - | その他諸費用 | - | 
| 更新料 | - | 火災(家財)保険 | - | 
| 共益費 | - | 町内費 | - | 
| 駐車場 | 敷地内駐車可 | バイク料金 | - | 
| 鍵交換費 | - | 清掃料 | - | 
| 更新事務手数料 | - | ||
| 保証区分 | 
								連帯保証人+保証会社 | 
						||
| 保証会社 | 
							   区分:加入要
							   
							  	 							    保証会社名:日本セーフティ 1カ月・更新料有り(年)  | 
							
						||
| 連帯保証人 | 
							   区分:要 -  | 
						||
| 仲介手数料 | 
								
																	275,000円
									 | 
							
						||
| 築年月 | 1998年8月(築27年) | ||
| 利用制限 | 法人:可、学生:相談、楽器:相談、事務所利用:可、ルームシェア:相談 | ||
| 学校区 | 宇賀地小学校(356m)・堀之内中学校(1,141m) | ||
| 設備 | - | ||
| 入居時期 | 即入居可 | ||
| 取引態様 | 仲介 | ||
| 備考 | 敷地約560坪。駐車場利用可能です。 | ||
| 手数料負担割合/配分割合 | 貸主:-% 借主:100% / 元付:50% 客付:50% | ||
| 取り扱い会社 | 
								 株式会社 高野不動産販売 新潟県長岡市柏町1丁目4-33  | 
						||
| 情報登録日 | 2025/02/23 | 次回更新予定日 | 2025/11/18 | 
						| TEL: | 0258-33-7711 | |
|---|---|---|
| 所在地: | 新潟県長岡市柏町1丁目4-33 | |
| 交通: | 長岡駅 | |
| 営業時間: | 9:00~17:30/定休日:土曜日・日曜日・祝日・お盆・年末年始 | |
| 免許番号: | 新潟県知事(1)第5568号 | 
										
											 | 
								
| 所属団体名: | (公社)新潟県宅地建物取引業協会,(公社)首都圏不動産公正取引協議会,(公財)日本賃貸住宅管理協会 | |
| 取引態様: | 仲介 | |
| ホームページ: | https://www.tknf.co.jp | |