物件掲載企業数:301|賃貸物件:3,260件|売買物件:3,239件|今週の登録物件:234
閲覧中のブラウザ(インターネットエクスプローラー)は非推奨ブラウザです。
物件が正しく表示されなかったり、正しく検索されない場合があります。最新のブラウザ(Google Chrome・Edgeなど)にてご利用お願いいたします。
  

新潟県長岡市表町1丁目10番地5 マンション 2LDK 6.5万円の物件情報

物件名
所在地
面積
間取り
所在階
築年数
方位
賃料
管理費等
共益費
敷金
保証金
礼金
種別
構造
アーバンヒルズ長岡第二
1002号室
新潟県長岡市表町1丁目10番地5
50.33㎡
(15.22坪)
2LDK
10階
35年
6.5万円
なし
なし
1ヶ月
なし
なし
アパート・マンション・一戸建て
鉄筋コン
  • アーバンヒルズ長岡第二
    髙頭不動産 株式会社
  • この物件を問い合わせる/無料
  • TEL: 0120-410-420

物件画像

外観 間取り
物件画像
※画像クリックで拡大表示
外観
物件画像
※画像クリックで拡大表示
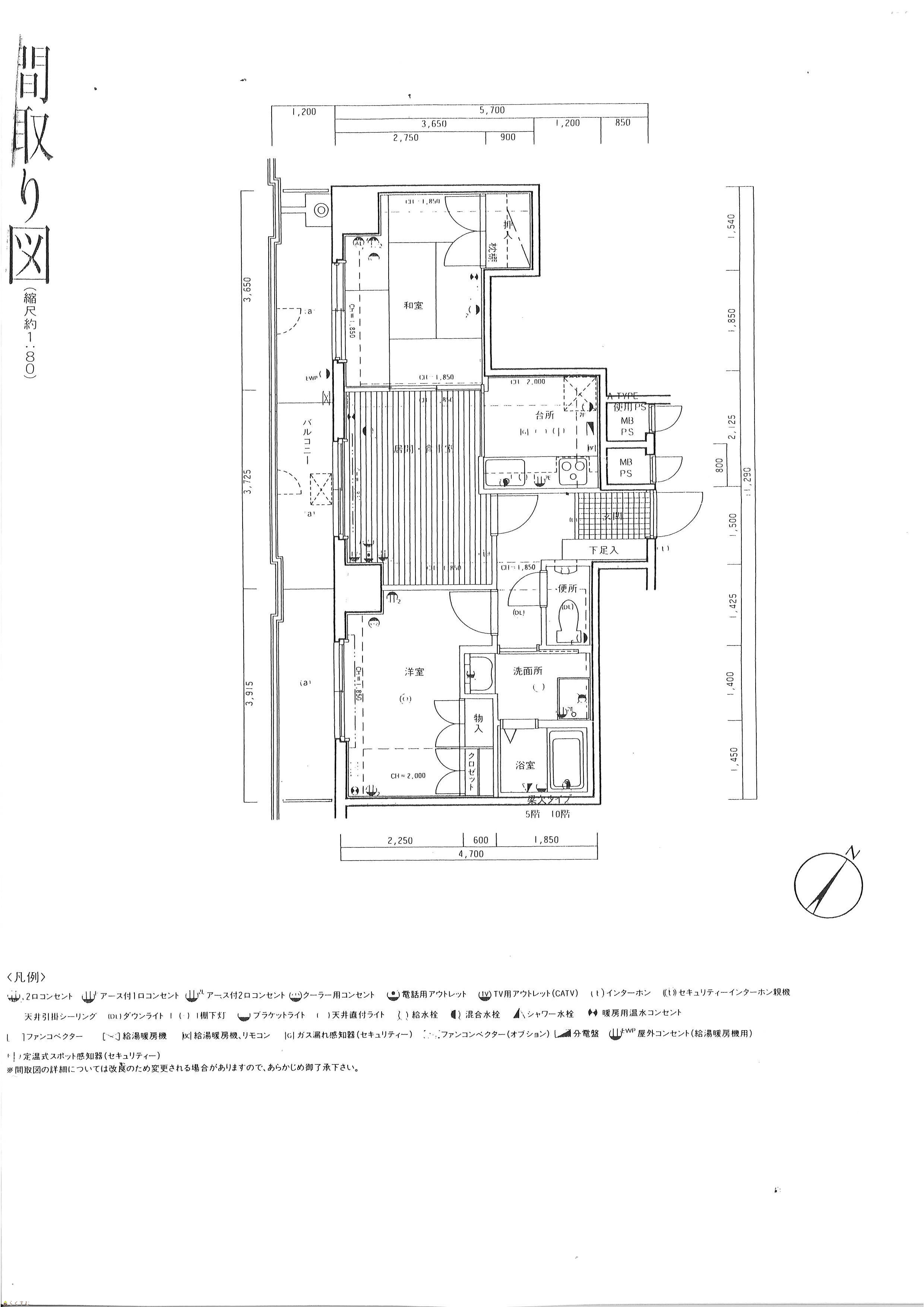
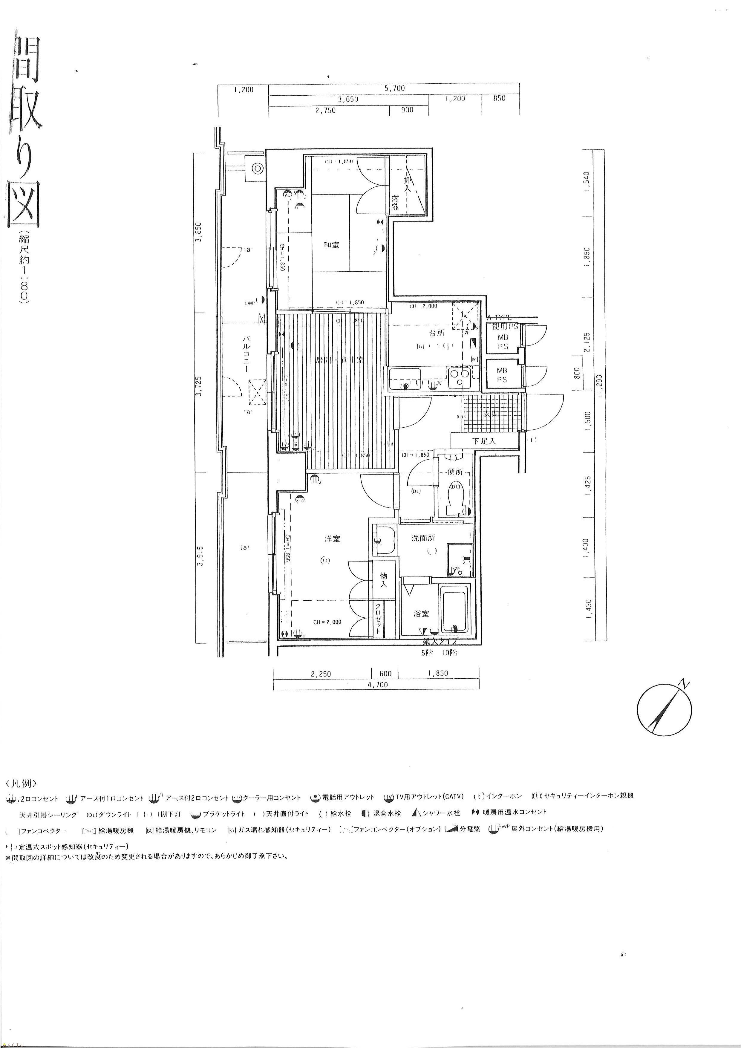
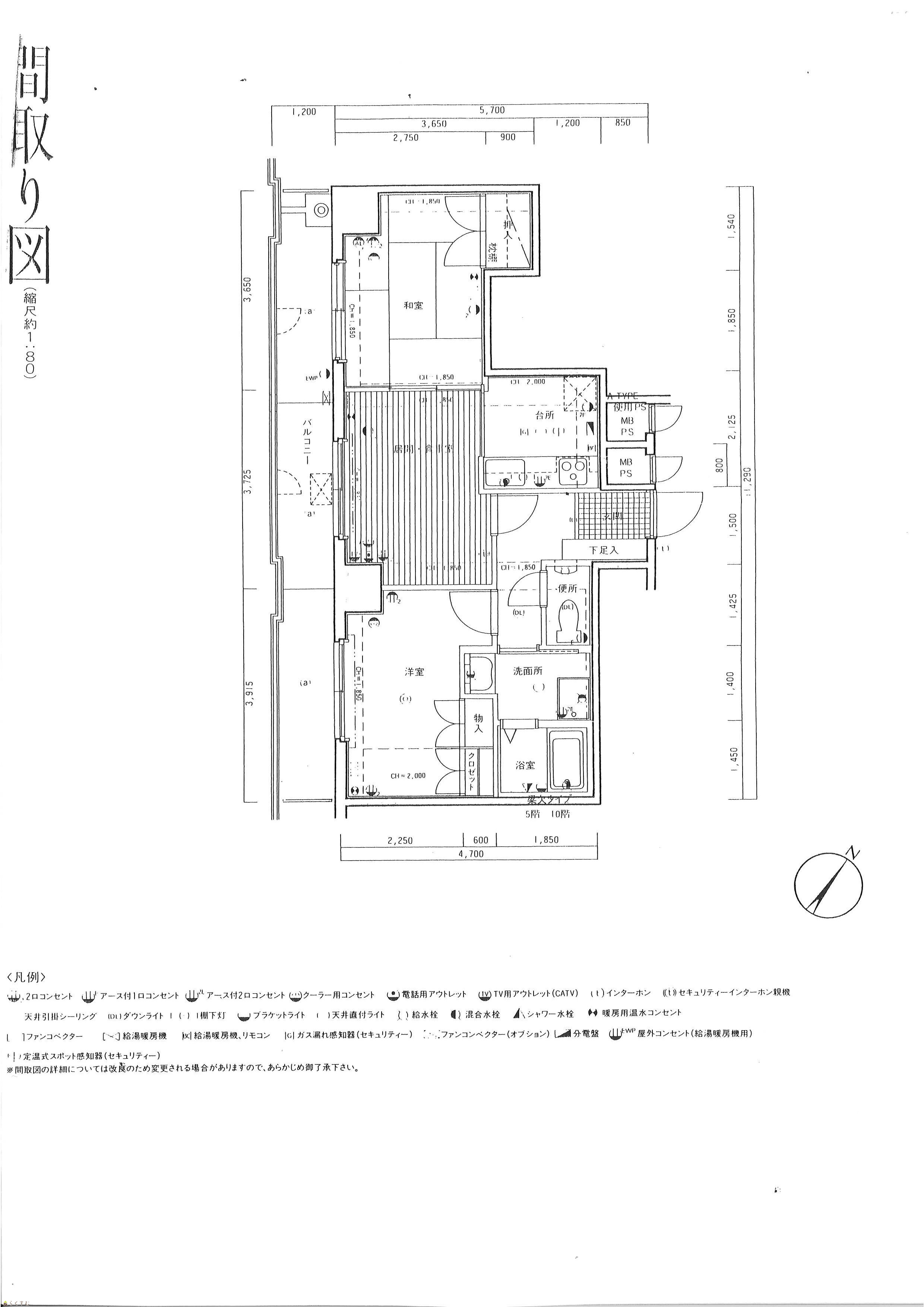
間取
詳細画像


物件概要

物件コード 00040-101087
物件名 アーバンヒルズ長岡第二
交通 駅:信越線 長岡駅から徒歩12分、バス:上田町から徒歩5分
所在地 新潟県長岡市表町1丁目10番地5
物件種別 アパート・マンション・一戸建て
総戸数 -
構造 鉄筋コン 階建 地上10階建
所在階/階数 10階/10階 号室 1002号室
面積 50.33㎡ /15.22坪 方位
間取り 2LDK (和室:6畳) (洋室:5)
LDK10
※写真は現況を優先する
賃料 6.5万円/月
管理費 -
礼金 -
敷金 1ヶ月
ほか初期費用 保証料 賃料の80% その他諸費用 -
更新料 - 火災(家財)保険 2年 15,000円
共益費 - 町内費 -
駐車場 - バイク料金 -
鍵交換費 - 清掃料 -
更新事務手数料 -
保証区分 連帯保証人+保証会社
保証会社 区分:加入要
保証会社名:日本インシュア
-
家賃保証金 52,000円
連帯保証人 区分:要
-
仲介手数料 82,500円
築年月 1990年9月(築35年)
利用制限 ペット:不可、楽器:不可、事務所利用:不可
学校区 表町小学校(746m)・東中学校(1,369m)
設備 バス停近く、最寄り駅近く、最上階、エレベーター、敷地内ゴミ置き場、南向き、玄関オートロック、バストイレ別、温水洗浄便座、洗面所独立、エアコン2基、都市ガス、バルコニー、洗濯機置場 室内、クロゼット、保証会社利用可能、礼金不要
入居時期 相談
取引態様 仲介
備考 -
手数料負担割合/配分割合 貸主:0%   借主:100% / 元付:50%   客付:50%  
取り扱い会社

髙頭不動産 株式会社

新潟県長岡市千歳1-3-25

情報登録日 2026/03/31 次回更新予定日 2026/06/09
  • アーバンヒルズ長岡第二
    髙頭不動産 株式会社
  • この物件を問い合わせる/無料
  • TEL: 0120-410-420

この物件の地図・周辺情報・行政情報

この物件の周辺情報・行政情報を詳しく見る
【周辺情報】
物件の近くにあるコンビニや銀行・学校など、アイコン付のマップで詳しく表示できます!
【行政情報】
水道料や下水道料・ガス料金など、暮らしに関係のある情報を表示しています。
セブン-イレブン 長岡表町店(コンビニ)まで410m
第四北越銀行 長岡本店営業部(銀行)まで340m
長岡郵便局(郵便局)までm

※カメラのアイコンがある場合は、マウスをポイントするとその施設の画像がご覧いただけます。


担当取扱い店舗情報

取扱い店舗画像
髙頭不動産 株式会社
TEL: 0120-1818-27
所在地: 新潟県長岡市千歳1-3-25
交通: 長岡駅
営業時間: 8時30分~17時30分(大手支店は9時~18時)/定休日:本社:土日祝日(事前予約での対応可能)、支店:日曜祝日第5土曜(毎年2月下旬から3月は休みなし)
免許番号: 新潟県知事(17)第191号 この会社の情報を詳しく見る
所属団体名: 新潟県宅地建物取引協会 長岡支部
取引態様: 仲介
ホームページ: http://www.takato-f.com