| 物件名
							 所在地  | 
							面積
							 間取り 所在階  | 
							築年数
							 方位  | 
							賃料
							 管理費等 共益費  | 
							敷金
							 保証金 礼金  | 
							種別
							 構造  | 
						
|---|---|---|---|---|---|
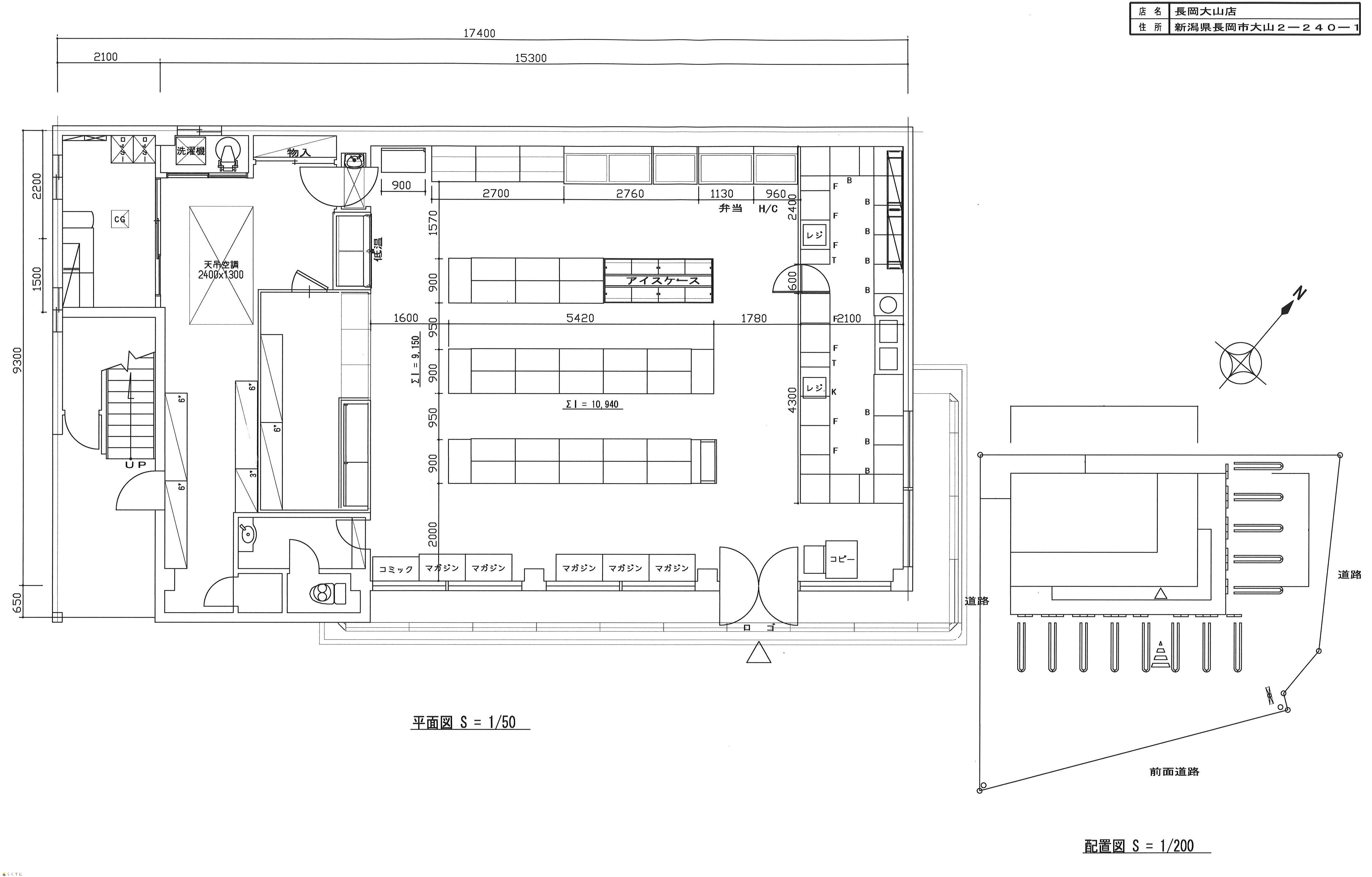
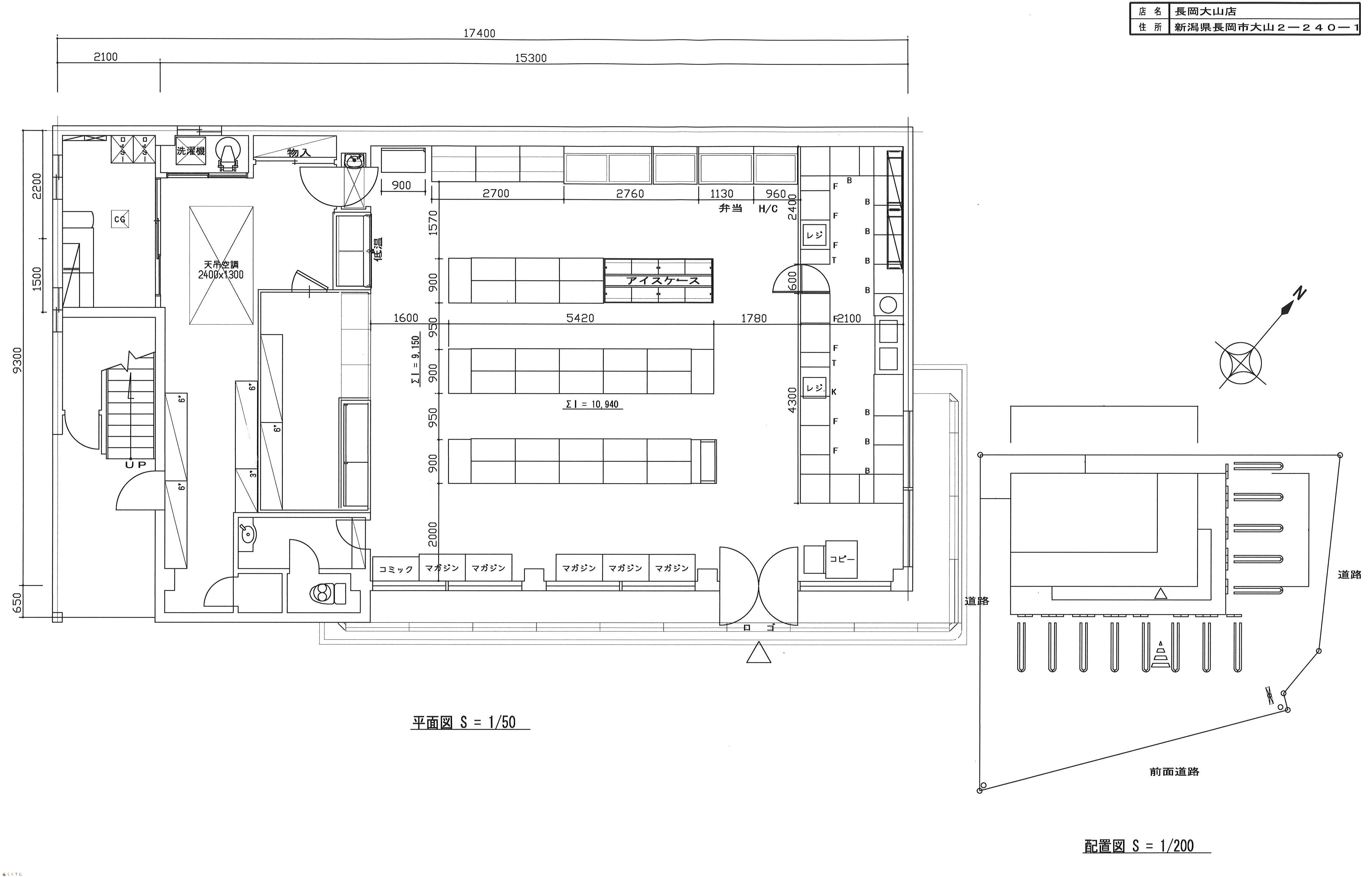
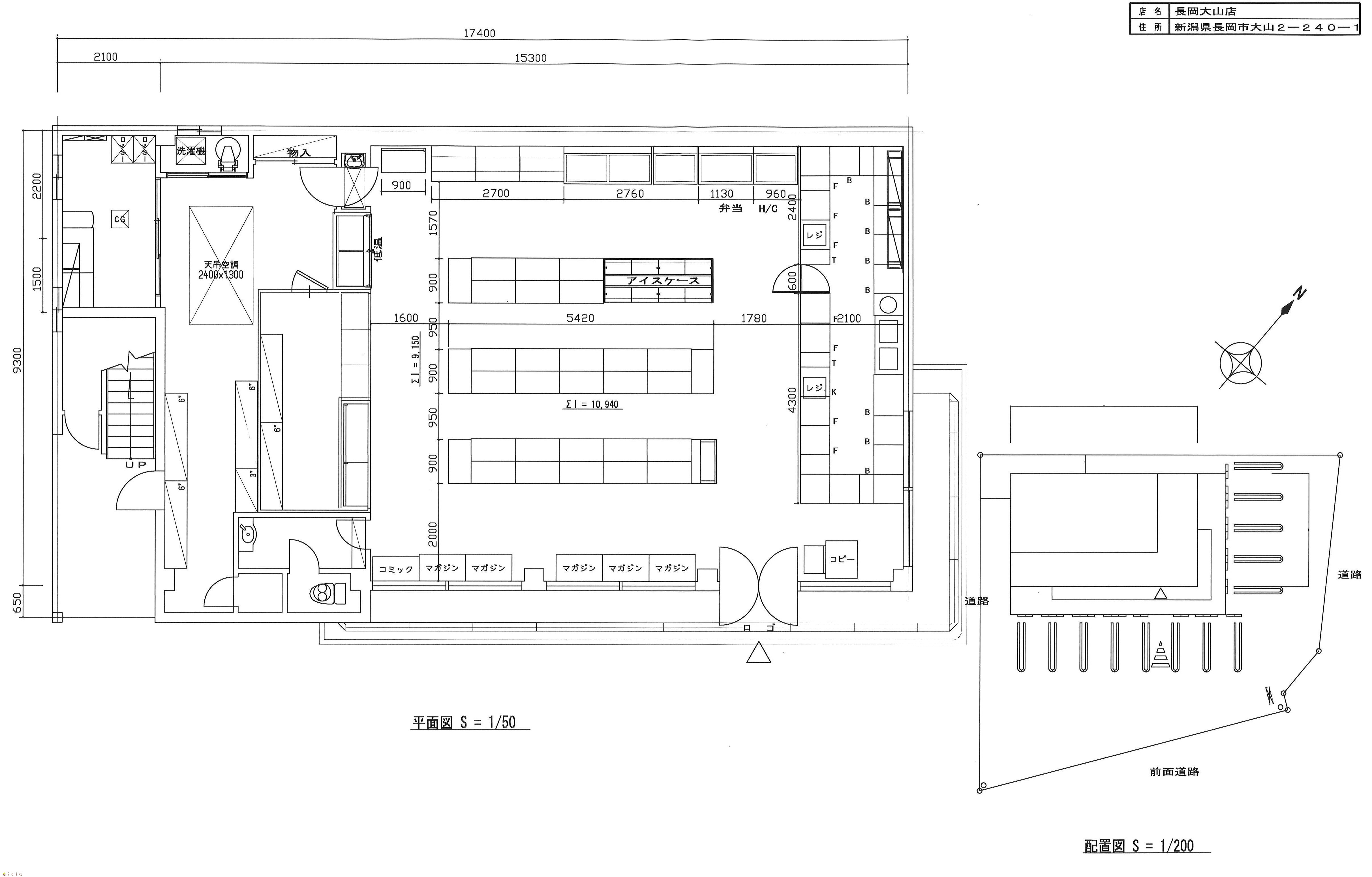
| 大山2貸店舗 新潟県長岡市大山2丁目240番地1  | 162.91㎡ (49.28坪) - 1階  | 38年 -  | 27.5万円 なし なし  | 80万円 なし 1ヶ月  | 店舗 鉄骨  | 
						
| 外観 | 間取り | 
|---|---|
								![]() ※画像クリックで拡大表示 外観写真 
							 | 
							
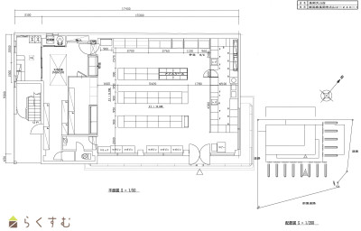
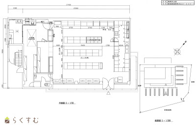
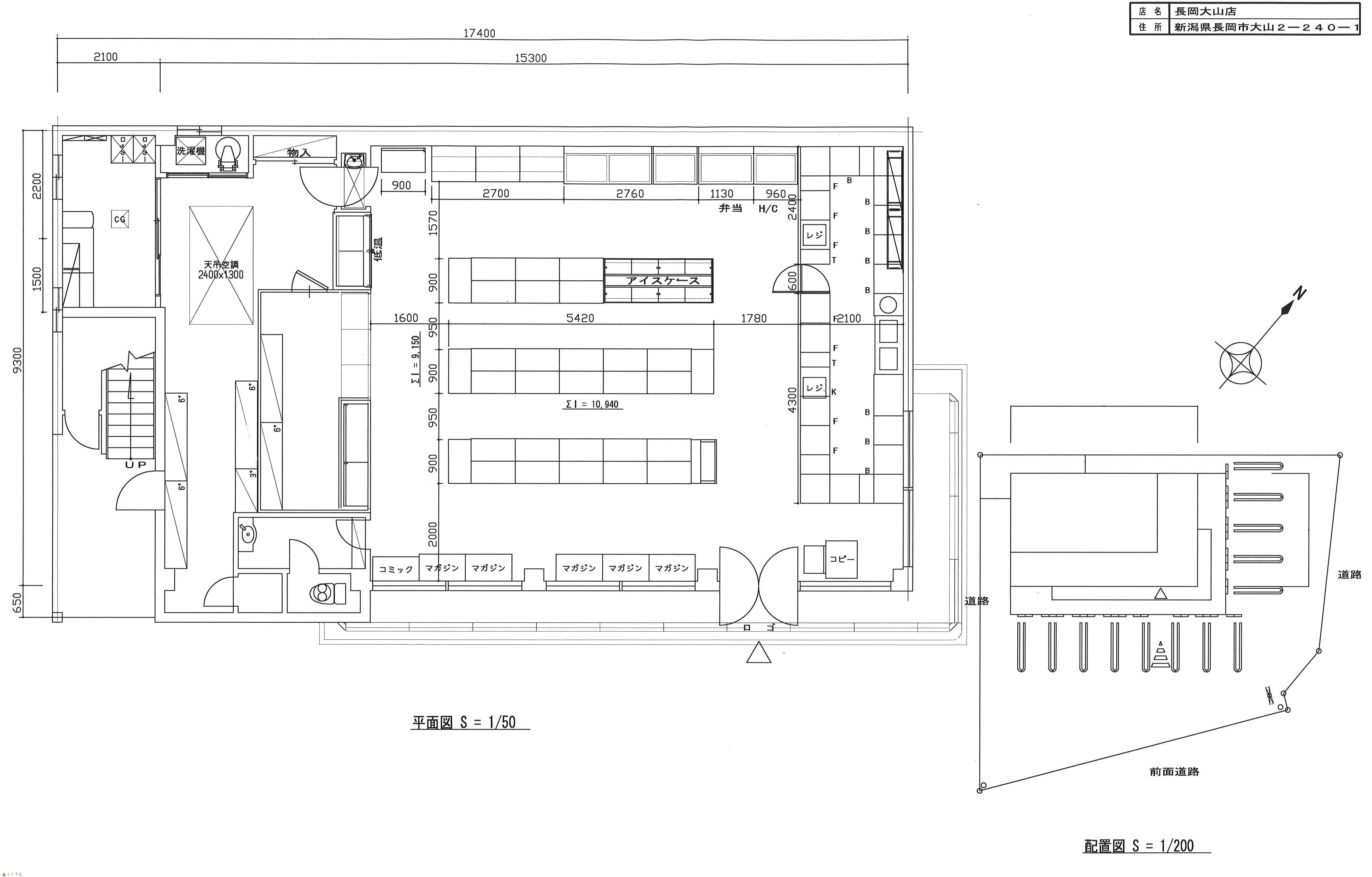
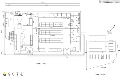
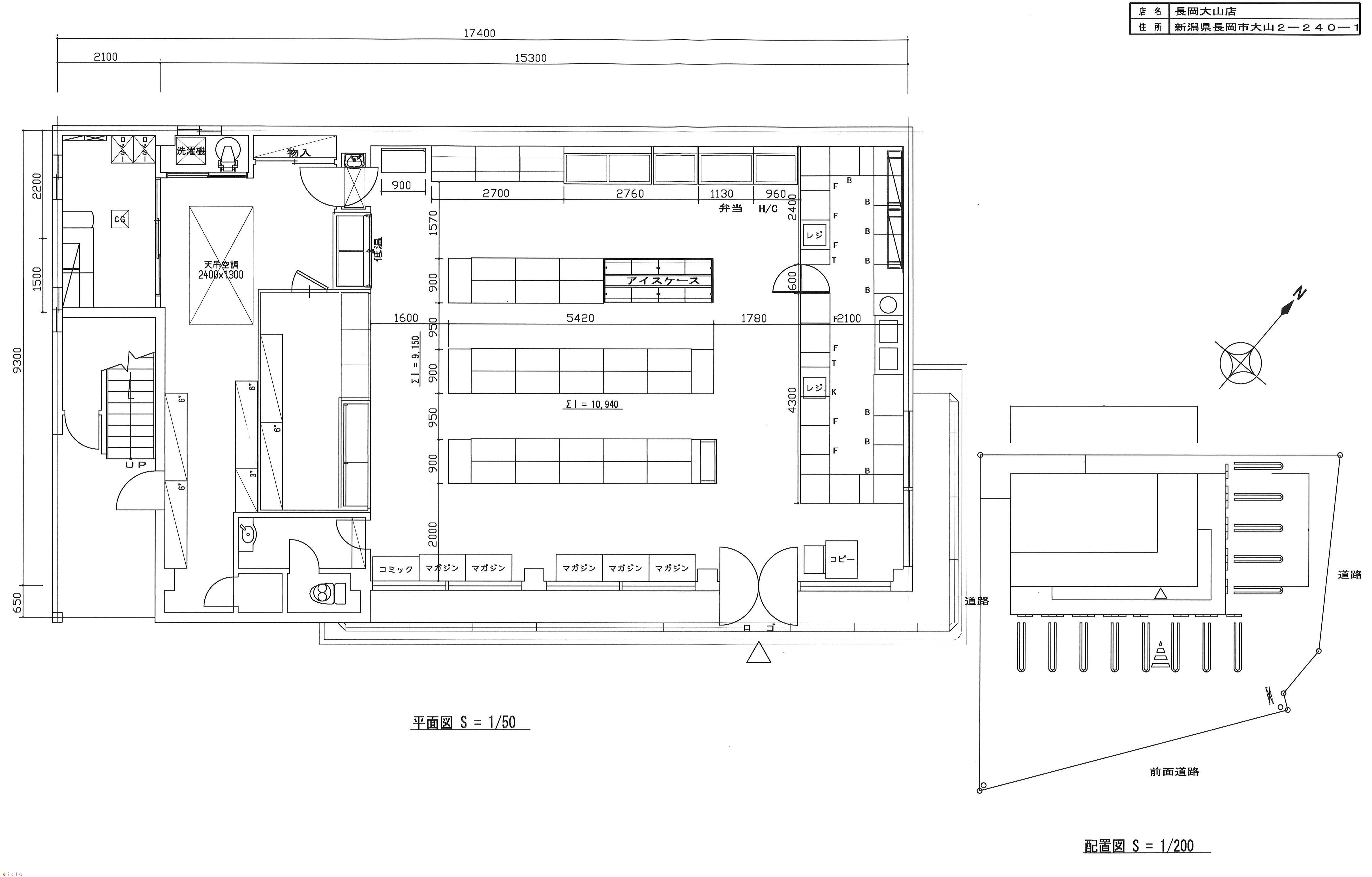
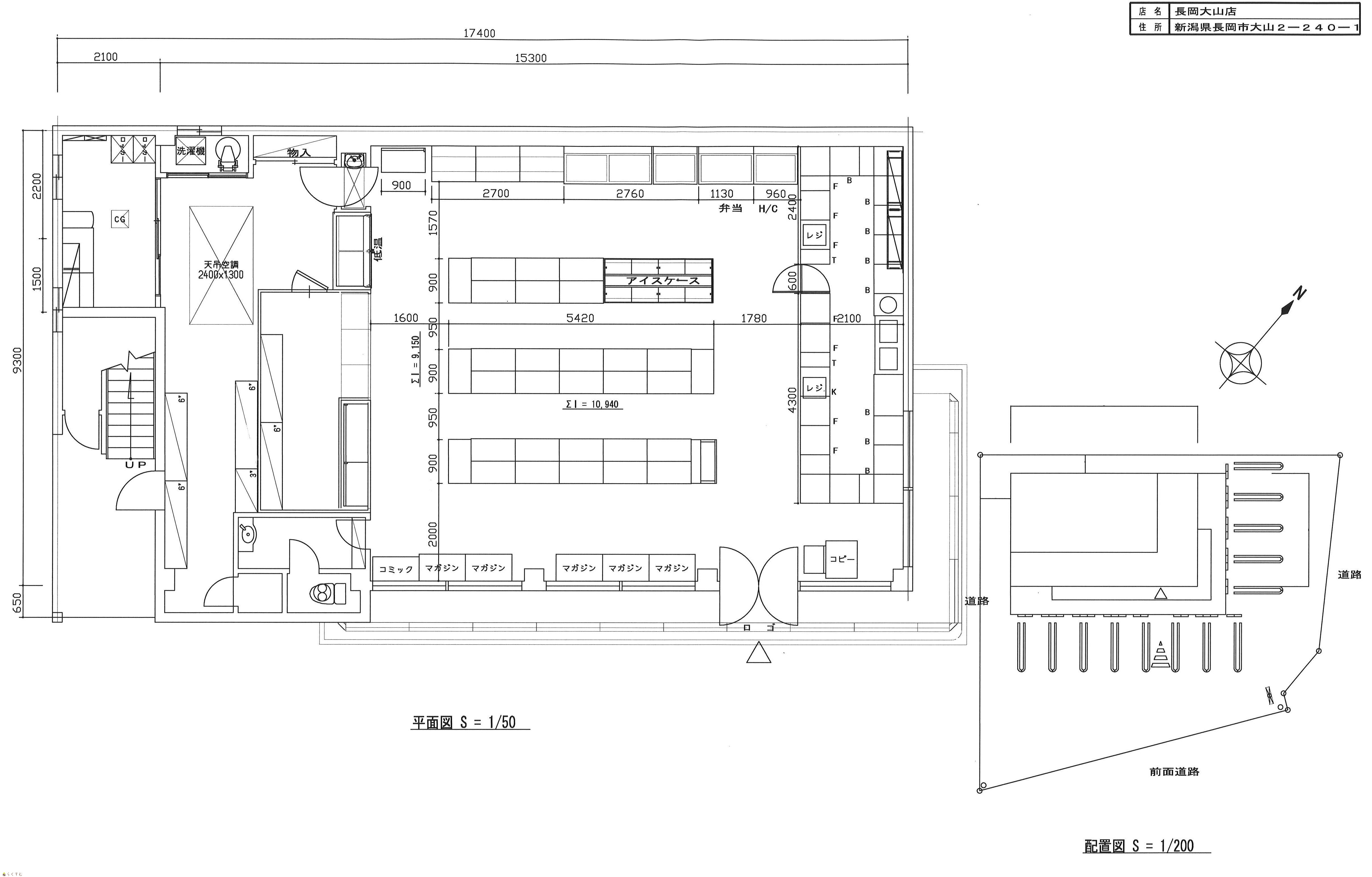
								![]() ※画像クリックで拡大表示 平面図・配置図 
							 | 
						
| 詳細画像 | |
| 
								 | 
						|
| 物件コード | 00040-101068 | ||
|---|---|---|---|
| 物件名 | 大山2貸店舗 | ||
| 交通 | 駅:上越新幹線 長岡駅から徒歩46分、バス:西中入口から徒歩3分 | ||
| 所在地 | 新潟県長岡市大山2丁目240番地1 | ||
| 物件種別 | 店舗 | ||
| 総戸数 | - | ||
| 構造 | 鉄骨 | 階建 | 地上2階建 | 
| 所在階/階数 | 1階/2階 | 号室 | - | 
| 面積 | 162.91㎡ /49.28坪 | 方位 | - | 
| 間取り | - | ||
| 賃料 | 27.5万円/月
								
								 | 
							管理費 | - | 
| 礼金 | 1ヶ月
								
								 | 
							敷金 | 80万円
								
								 | 
						
| ほか初期費用 | - | その他諸費用 | - | 
| 更新料 | - | 火災(家財)保険 | - | 
| 共益費 | - | 町内費 | - | 
| 駐車場 | - | バイク料金 | - | 
| 鍵交換費 | - | 清掃料 | - | 
| 更新事務手数料 | - | ||
| 保証区分 | 
								連帯保証人のみ | 
						||
| 保証会社 | 
							   区分:指定なし
							   
							  	 
							   
							   							    -  | 
							
						||
| 連帯保証人 | 
							   区分:要 -  | 
						||
| 仲介手数料 | 
								
																	275,000円
									 | 
							
						||
| 築年月 | 1987年11月(築38年) | ||
| 利用制限 | 法人:可、事務所利用:可 | ||
| 学校区 | 希望が丘小学校(566m)・西中学校(573m) | ||
| 設備 | 1階、即引き渡し可、スケルトン、駐車場あり | ||
| 入居時期 | 即入居可 | ||
| 取引態様 | 仲介 | ||
| 備考 | 定期借家契約。(10年) 現況渡し。(相談可) 原状回復(スケルトン)返し。(相談可) 1階のみ賃貸可。(2階は含みません)  | 
						||
| 手数料負担割合/配分割合 | 貸主:-% 借主:-% / 元付:-% 客付:-% | ||
| 取り扱い会社 | 
								 髙頭不動産 株式会社 新潟県長岡市千歳1-3-25  | 
						||
| 情報登録日 | 2025/08/06 | 次回更新予定日 | 2025/11/18 | 
| 
																		セブンイレブン 長岡北山2丁目店(コンビニ)まで440m ファミリーマート 長岡大島本町店(コンビニ)まで530m ウオロク 北山店(スーパー)まで490m  | 
																
																		クスリのアオキ 大島店(ドラッグストア)まで500m 第四北越銀行 大島支店(銀行)まで550m  | 
															
※カメラのアイコンがある場合は、マウスをポイントするとその施設の画像がご覧いただけます。
| TEL: | 0120-1818-27 | |
|---|---|---|
| 所在地: | 新潟県長岡市千歳1-3-25 | |
| 交通: | 長岡駅 | |
| 営業時間: | 8時30分~17時30分(大手支店は9時~18時)/定休日:本社:土日祝日(事前予約での対応可能)、支店:日曜祝日第5土曜(毎年2月下旬から3月は休みなし) | |
| 免許番号: | 新潟県知事(17)第191号 | 
										
											 | 
								
| 所属団体名: | 新潟県宅地建物取引協会 長岡支部 | |
| 取引態様: | 仲介 | |
| ホームページ: | http://www.takato-f.com | |