| 物件名
							 所在地  | 
							面積
							 間取り 所在階  | 
							築年数
							 方位  | 
							賃料
							 管理費等 共益費  | 
							敷金
							 保証金 礼金  | 
							種別
							 構造  | 
						
|---|---|---|---|---|---|
| 日興パレス長岡呉服町 405号室 新潟県長岡市呉服町1丁目3-2  | 22.56㎡ (6.82坪) 1K 4階  | 33年 南  | 3.5万円 なし なし  | 1ヶ月 なし なし  | アパート・マンション・一戸建て 鉄骨鉄筋コン  | 
						
| 外観 | 間取り | 
|---|---|
								![]() ※画像クリックで拡大表示 外観 
							 | 
							
								![]() ※画像クリックで拡大表示 間取 
							 | 
						
| 詳細画像 | |
| 
								 | 
						|
| 物件コード | 00040-101027 | ||
|---|---|---|---|
| 物件名 | 日興パレス長岡呉服町 | ||
| 交通 | 駅:信越線 長岡駅から徒歩11分、バス:関東町から徒歩3分 | ||
| 所在地 | 新潟県長岡市呉服町1丁目3-2 | ||
| 物件種別 | アパート・マンション・一戸建て | ||
| 総戸数 | - | ||
| 構造 | 鉄骨鉄筋コン | 階建 | 地上12階建 | 
| 所在階/階数 | 4階/12階 | 号室 | 405号室 | 
| 面積 | 22.56㎡ /6.82坪 | 方位 | 南 | 
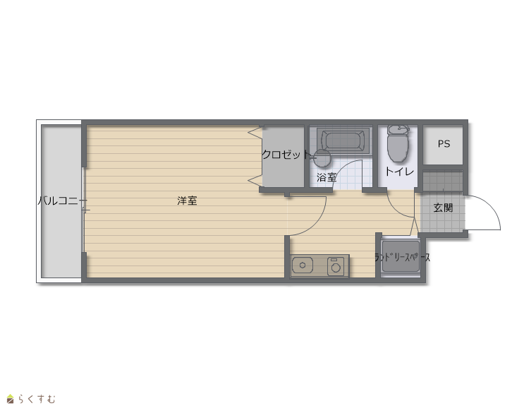
| 間取り | 1K (洋室:6) | ||
| 賃料 | 3.5万円/月
								
								 | 
							管理費 | - | 
| 礼金 | -
								
								 | 
							敷金 | 1ヶ月
								
								 | 
						
| ほか初期費用 | - | その他諸費用 | - | 
| 更新料 | 新賃料の1ヶ月分 | 火災(家財)保険 | 
																									
										15,000円
										 | 
						
| 共益費 | - | 町内費 | 
																									
										500円
										 | 
						
| 駐車場 | - | バイク料金 | - | 
| 鍵交換費 | - | 清掃料 | - | 
| リビングサポート | 
									500円
									 | 
														||
| 更新事務手数料 | - | ||
| 保証区分 | 
								保証会社+緊急連絡先 | 
						||
| 保証会社 | 
							   区分:加入要
							   
							  	 							    保証会社名:日本インシュア 初回:月額総賃料の80%、月額 500円  | 
							
						||
| 家賃保証金 | 
							36,800円							
															 | 
						||
| 連帯保証人 | 
							   区分:不要 -  | 
						||
| 仲介手数料 | 
								
																	38,500円
									 | 
							
						||
| 築年月 | 1992年11月(築33年) | ||
| 利用制限 | 法人:可、学生:可、単身者:可、二人入居:不可、シニア(60歳以上)入居:相談、ペット:不可、楽器:不可、事務所利用:不可、ルームシェア:不可 | ||
| 学校区 | 表町小学校(230m)・東中学校(887m) | ||
| 設備 | バス停近く、最寄り駅近く、エレベーター、敷地内ゴミ置き場、駐輪場あり、南向き、管理人常駐、システムキッチン、バストイレ別、暖房便座、エアコン、都市ガス、バルコニー、洗濯機置場 室内、クロゼット、シューズBOX、TVモニター付きインターホン、各居室照明 | ||
| 入居時期 | 即入居可 | ||
| 取引態様 | 仲介 | ||
| 備考 | - | ||
| 手数料負担割合/配分割合 | 貸主:0% 借主:100% / 元付:50% 客付:50% | ||
| 取り扱い会社 | 
								 髙頭不動産 株式会社 新潟県長岡市千歳1-3-25  | 
						||
| 情報登録日 | 2025/05/14 | 次回更新予定日 | 2025/11/18 | 
| 
																		セブン-イレブン 長岡呉服町店(コンビニ)まで50m | 
															
※カメラのアイコンがある場合は、マウスをポイントするとその施設の画像がご覧いただけます。
| TEL: | 0120-1818-27 | |
|---|---|---|
| 所在地: | 新潟県長岡市千歳1-3-25 | |
| 交通: | 長岡駅 | |
| 営業時間: | 8時30分~17時30分(大手支店は9時~18時)/定休日:本社:土日祝日(事前予約での対応可能)、支店:日曜祝日第5土曜(毎年2月下旬から3月は休みなし) | |
| 免許番号: | 新潟県知事(17)第191号 | 
										
											 | 
								
| 所属団体名: | 新潟県宅地建物取引協会 長岡支部 | |
| 取引態様: | 仲介 | |
| ホームページ: | http://www.takato-f.com | |