物件掲載企業数:299|賃貸物件:3,627件|売買物件:3,333件|今週の登録物件:201
閲覧中のブラウザ(インターネットエクスプローラー)は非推奨ブラウザです。
物件が正しく表示されなかったり、正しく検索されない場合があります。最新のブラウザ(Google Chrome・Edgeなど)にてご利用お願いいたします。
  

新潟県柏崎市北半田2丁目1-14新栄ビル 事務所 40万円の物件情報

1~3階の1棟貸 倉庫・事務所として

物件名
所在地
面積
間取り
所在階
築年数
方位
賃料
管理費等
共益費
敷金
保証金
礼金
種別
構造
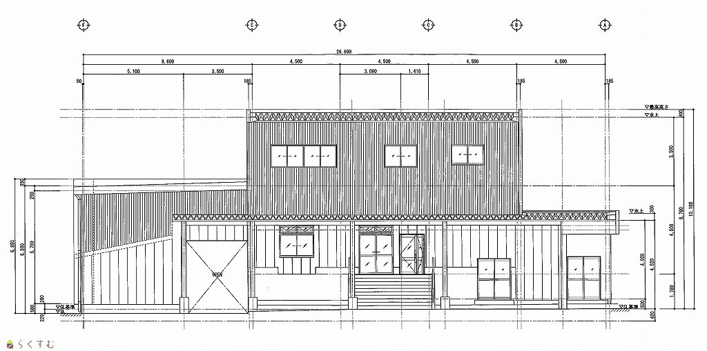
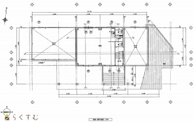
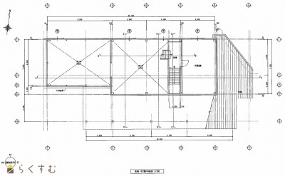
1棟貸 北半田 国道252号線沿い 倉庫付き貸事務所
新潟県柏崎市北半田2丁目1-14新栄ビル
381.59㎡
(115.43坪)
-
-
43年
-
40万円
なし
なし
1ヶ月
なし
なし
事務所
鉄骨
  • 1棟貸 北半田 国道252号線沿い 倉庫付き貸事務所
    株式会社 ai-will
  • この物件を問い合わせる/無料
  • TEL: 0257-35-5370

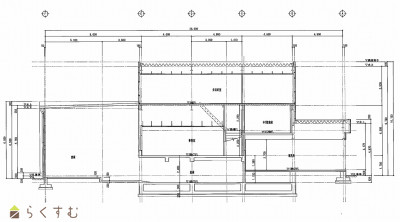
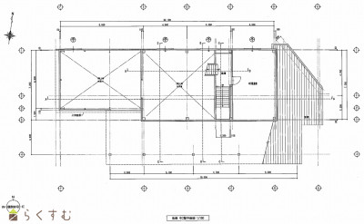
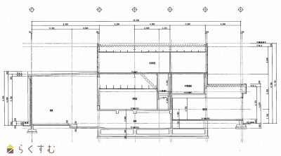
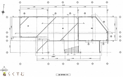
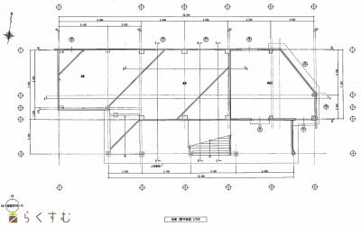
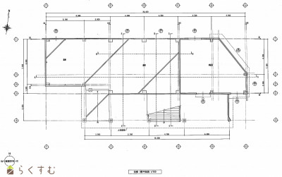
物件画像

外観 間取り
物件画像
※画像クリックで拡大表示
外観
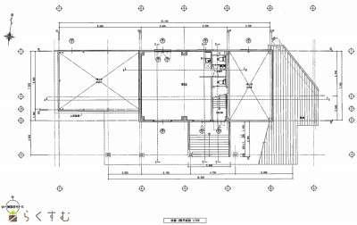
物件画像
※画像クリックで拡大表示
間取り
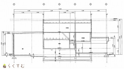
詳細画像


物件概要

駐車場30~40台可能
物件コード 00037-100765
物件名 1棟貸 北半田 国道252号線沿い 倉庫付き貸事務所
交通 駅:信越線 茨目駅から徒歩20分、バス:北半田1丁目から徒歩4分
所在地 新潟県柏崎市北半田2丁目1-14新栄ビル
物件種別 事務所
総戸数 1戸
構造 鉄骨 階建 地上3階建
所在階/階数 - 号室 -
面積 381.59㎡ /115.43坪 方位 -
間取り -
賃料 40万円/月
管理費 -
礼金 - 敷金 1ヶ月
ほか初期費用 - その他諸費用 -
更新料 - 火災(家財)保険 別途ご加入ください
共益費 - 町内費 -
駐車場
バイク料金 -
鍵交換費 - 清掃料 -
更新事務手数料 11,000円
保証区分 保証会社+緊急連絡先
保証会社 区分:加入要
保証会社名:ジェイリース
事業用プランは保証料賃料の100%となります
家賃保証金 400,000円
連帯保証人 区分:不要
-
仲介手数料 440,000円
築年月 1982年1月(築43年)
利用制限 法人:可、事務所利用:可
学校区 比角小学校(566m)・第二中学校(857m)
設備 男女トイレ別、駐車場あり
入居時期 相談
取引態様 仲介
備考 -
手数料負担割合/配分割合 貸主:-%   借主:100% / 元付:50%   客付:50%  
取り扱い会社

株式会社 ai-will

新潟県柏崎市田中10-31

情報登録日 2025/07/22 次回更新予定日 2025/11/10
  • 1棟貸 北半田 国道252号線沿い 倉庫付き貸事務所
    株式会社 ai-will
  • この物件を問い合わせる/無料
  • TEL: 0257-35-5370

この物件の地図・周辺情報・行政情報

この物件の周辺情報・行政情報を詳しく見る
【周辺情報】
物件の近くにあるコンビニや銀行・学校など、アイコン付のマップで詳しく表示できます!
【行政情報】
水道料や下水道料・ガス料金など、暮らしに関係のある情報を表示しています。
ローソン 柏崎インター店(コンビニ)まで320m
ピアレマート 柏崎店(スーパー)まで510m
クスリのアオキ 柏崎中央店(ドラッグストア)まで360m
JA新潟厚生連 柏崎総合医療センター(病院)まで580m
大光銀行 柏崎南支店(銀行)まで350m
第四北越銀行 柏崎南支店(銀行)まで310m

※カメラのアイコンがある場合は、マウスをポイントするとその施設の画像がご覧いただけます。


担当取扱い店舗情報

取扱い店舗画像
株式会社 ai-will
TEL: 0257-35-5370
所在地: 新潟県柏崎市田中10-31
交通: 国道8号線よりすぐ
営業時間: 平日9:00~18:00土日祝10:00~16:0/定休日:当社規定 (お盆・年末年始・GW)
免許番号: 新潟県知事(4)4821号 この会社の情報を詳しく見る
所属団体名: 新潟県宅地建物取引協会 柏崎支部
取引態様: 仲介
ホームページ: http://www.ai-will.co.jp/