物件掲載企業数:301|賃貸物件:3,261件|売買物件:3,251件|今週の登録物件:296
閲覧中のブラウザ(インターネットエクスプローラー)は非推奨ブラウザです。
物件が正しく表示されなかったり、正しく検索されない場合があります。最新のブラウザ(Google Chrome・Edgeなど)にてご利用お願いいたします。
  

新潟県刈羽郡刈羽村割町新田830-1 事務所 15万円の物件情報

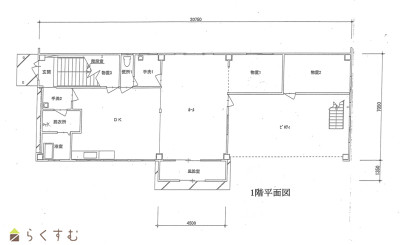
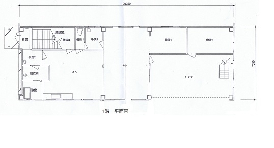
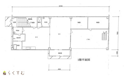
1階は事務所または倉庫として利用できます。

物件名
所在地
面積
間取り
所在階
築年数
方位
賃料
管理費等
共益費
敷金
保証金
礼金
種別
構造
割町新田事務所倉庫
新潟県刈羽郡刈羽村割町新田830-1
316.71㎡
(95.8坪)
-
2階
42年
-
15万円
なし
なし
3ヶ月
なし
なし
事務所
鉄骨
  • 割町新田事務所倉庫
    株式会社 ウェルネスホーム
  • この物件を問い合わせる/無料
  • TEL: 0258-29-0003

物件画像

外観 間取り
物件画像
※画像クリックで拡大表示
外観
物件画像
※画像クリックで拡大表示
平面図1階
詳細画像


物件概要

2階は倉庫としての利用がお勧めです。
物件コード 00031-100161
物件名 割町新田事務所倉庫
交通 駅:越後線 荒浜駅から徒歩22分、バス:割町新田集落センター前から徒歩2分
所在地 新潟県刈羽郡刈羽村割町新田830-1
物件種別 事務所
総戸数 -
構造 鉄骨 階建 地上2階建
所在階/階数 2階/2階 号室 -
面積 316.71㎡ /95.8坪 方位 -
間取り LDK (和室:10畳、6畳、6畳、6畳、8畳、8畳、6畳)
LDK約23畳
浴室1階に1か所・2階に1か所 トイレ各階に1か所 2階各室入口ドアは鍵付エアコン付 駐車場6~7台
賃料 15万円/月
管理費 -
礼金 -
敷金 3ヶ月
ほか初期費用 - その他諸費用 -
更新料 - 火災(家財)保険 要加入
共益費 - 町内費 -
駐車場 6~7台可無料 バイク料金 -
鍵交換費 - 清掃料 -
更新事務手数料 -
保証区分 連帯保証人のみ
保証会社 区分:指定なし
-
連帯保証人 区分:要
-
仲介手数料 165,000円
築年月 1983年12月(築42年)
利用制限 事務所利用:可
学校区 刈羽小学校(997m)・刈羽中学校(1,177m)
設備 駐車場あり
入居時期 即入居可
取引態様 仲介
備考 -
手数料負担割合/配分割合 貸主:-%   借主:100% / 元付:50%   客付:50%  
取り扱い会社

株式会社 ウェルネスホーム

新潟県長岡市大山1-8-5

情報登録日 2025/10/22 次回更新予定日 2026/06/05
  • 割町新田事務所倉庫
    株式会社 ウェルネスホーム
  • この物件を問い合わせる/無料
  • TEL: 0258-29-0003

この物件の地図・周辺情報・行政情報

この物件の周辺情報・行政情報を詳しく見る
【周辺情報】
物件の近くにあるコンビニや銀行・学校など、アイコン付のマップで詳しく表示できます!
【行政情報】
水道料や下水道料・ガス料金など、暮らしに関係のある情報を表示しています。

担当取扱い店舗情報

取扱い店舗画像
株式会社 ウェルネスホーム
TEL: 0258-29-0003
所在地: 新潟県長岡市大山1-8-5
交通:
営業時間: 9:30~18:00/定休日:日曜・祭日 土曜は不定休
免許番号: 新潟県知事(8)3794号 この会社の情報を詳しく見る
所属団体名: 公益社団法人 全国宅地建物取引業保証協会
取引態様: 仲介
ホームページ: http://www.wellnesshome.co.jp/