物件掲載企業数:300|賃貸物件:3,168件|売買物件:3,232件|今週の登録物件:413
閲覧中のブラウザ(インターネットエクスプローラー)は非推奨ブラウザです。
物件が正しく表示されなかったり、正しく検索されない場合があります。最新のブラウザ(Google Chrome・Edgeなど)にてご利用お願いいたします。
  

新潟県長岡市喜多町3166 事務所 26万円の物件情報

駐車場並列8台可能で来客対応も安心。屋外物置付きで収納力も確保。男女別トイレ2箇所完備の、使い勝手の良い事務所向け物件です。

物件名
所在地
面積
間取り
所在階
築年数
方位
賃料
管理費等
共益費
敷金
保証金
礼金
種別
構造
セブン アウルズⅡ 1階 貸事務所
新潟県長岡市喜多町3166
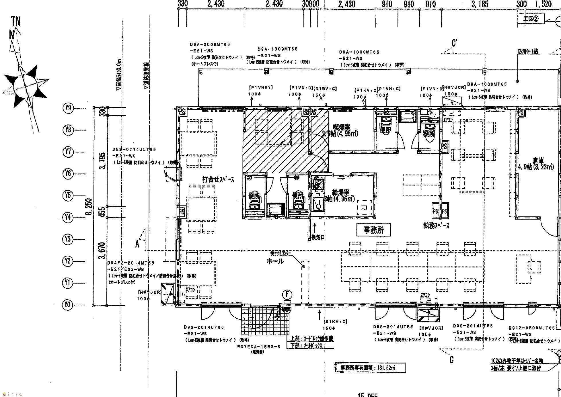
131.62㎡
(39.81坪)
-
1階
8年
-
26万円
なし
あり
2ヶ月
なし
なし
事務所
軽量鉄骨
  • セブン アウルズⅡ 1階 貸事務所
    株式会社 長岡総合開発
  • この物件を問い合わせる/無料
  • TEL: 0258-46-8777

物件画像

外観 間取り
物件画像
※画像クリックで拡大表示
外観
物件画像
※画像クリックで拡大表示
間取り
詳細画像


物件概要

ご見学のお申込み、またはご不明な点がある場合は、お問い合わせフォームよりお気軽にご相談ください♪お電話でもかまいません。
物件コード 00030-101202
物件名 セブン アウルズⅡ 1階 貸事務所
交通 駅:上越新幹線 長岡駅から徒歩53分、バス:喜多町から徒歩8分
所在地 新潟県長岡市喜多町3166
物件種別 事務所
総戸数 -
構造 軽量鉄骨 階建 地上3階建
所在階/階数 1階/3階 号室 -
面積 131.62㎡ /39.81坪 方位 -
間取り -
賃料 26万円/月
管理費 -
礼金 -
敷金 2ヶ月
ほか初期費用 - その他諸費用 -
更新料 - 火災(家財)保険 別途要加入
共益費 15,000円
町内費 別途実費
駐車場 敷地内駐車場並列8台付 バイク料金 -
鍵交換費 - 清掃料 -
更新事務手数料 -
保証区分 連帯保証人+保証会社
保証会社 区分:加入要
保証会社名:ジェイリース
初回保証料:月額総賃料の100%(契約時)・継続保証料:月額総賃料の10%(毎年)
家賃保証金 275,000円
連帯保証人 区分:要
-
仲介手数料 260,000円
築年月 2018年3月(築8年)
利用制限 法人:可、事務所利用:可
学校区 日越小学校(1,069m)・西中学校(1,218m)
設備 1階、融雪設備あり、エアコン、男女トイレ別、即引き渡し可、スケルトン、給湯、OAフロア、駐車場あり
入居時期 即入居可
取引態様 仲介
備考 ・敷地内並列駐車場8台付です。【№19、20、21、22、23、24、25、26】
・事務所61.7帖、屋内倉庫4.9帖、給湯室3.0帖、多目的スペース2.9帖

※内装諸設備を変更される場合は借主者様にてご負担ください。
※業種、規模により用途変更の手続きが必要となる場合があります。
※照明設備・ブラインド・エアコン・温水器他内装設備全て残置物となりす。
手数料負担割合/配分割合 貸主:-%   借主:100% / 元付:-%   客付:-%  
取り扱い会社

株式会社 長岡総合開発

新潟県長岡市南七日町89-21

情報登録日 2026/04/09 次回更新予定日 2026/04/26
  • セブン アウルズⅡ 1階 貸事務所
    株式会社 長岡総合開発
  • この物件を問い合わせる/無料
  • TEL: 0258-46-8777

この物件の地図・周辺情報・行政情報

この物件の周辺情報・行政情報を詳しく見る
【周辺情報】
物件の近くにあるコンビニや銀行・学校など、アイコン付のマップで詳しく表示できます!
【行政情報】
水道料や下水道料・ガス料金など、暮らしに関係のある情報を表示しています。

担当取扱い店舗情報

取扱い店舗画像
株式会社 長岡総合開発
TEL: 0258-46-8777
所在地: 新潟県長岡市南七日町89-21
交通: バス停「南七日町」徒歩3分
営業時間: 9:00~18:00/定休日:日曜・祭日
免許番号: 新潟県知事(10)2876号 この会社の情報を詳しく見る
所属団体名: 新潟県宅地建物取引業協会 長岡支部
取引態様: 仲介
ホームページ: http://www.nagaoka-sk.co.jp