定期借家契約物件
| 物件名
							 所在地  | 
							面積
							 間取り 所在階  | 
							築年数
							 方位  | 
							賃料
							 管理費等 共益費  | 
							敷金
							 保証金 礼金  | 
							種別
							 構造  | 
						
|---|---|---|---|---|---|
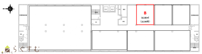
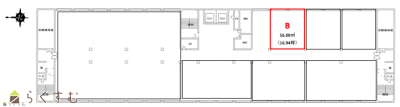
| 貸事務所 6階フロア  B号室 新潟県長岡市千秋二丁目2788番地1  | 56㎡ (16.94坪) - 6階  | 40年 -  | 10.34万円 なし あり  | 2ヶ月 なし なし  | 事務所 鉄骨鉄筋コン  | 
						
| 外観 | 間取り | 
|---|---|
								![]() ※画像クリックで拡大表示 外観 
							 | 
							
								![]() ※画像クリックで拡大表示 内部 
							 | 
						
| 詳細画像 | |
| 
								 | 
						|
| 定期借家契約物件 | |||
| 物件コード | 00027-100327 | ||
|---|---|---|---|
| 物件名 | 貸事務所 6階フロア | ||
| 交通 | 駅:上越新幹線 長岡駅から徒歩42分、バス:本社営業所前から徒歩3分 | ||
| 所在地 | 新潟県長岡市千秋二丁目2788番地1 | ||
| 物件種別 | 事務所 | ||
| 総戸数 | - | ||
| 構造 | 鉄骨鉄筋コン | 階建 | 地上8階建 | 
| 所在階/階数 | 6階/8階 | 号室 | B号室 | 
| 面積 | 56㎡ /16.94坪 | 方位 | - | 
| 間取り | - | ||
| 賃料 | 10.34万円/月
								
								 | 
							管理費 | - | 
| 礼金 | - | 敷金 | 2ヶ月
								
								 | 
						
| ほか初期費用 | - | その他諸費用 | - | 
| 更新料 | - | 火災(家財)保険 | - | 
| 共益費 | 																	
										30,000円
										 | 
							町内費 | - | 
| 駐車場 | 
																									
										7,700円
										 | 
							
														バイク料金 | - | 
| 鍵交換費 | - | 清掃料 | - | 
| 更新事務手数料 | - | ||
| 保証区分 | 
								連帯保証人+保証会社 | 
						||
| 保証会社 | 
							   区分:加入要
							   
							  	 							    保証会社名:その他 (保証会社は任意選択可) -  | 
							
						||
| 連帯保証人 | 
							   区分:要 必須  | 
						||
| 仲介手数料 | 
								
																	103,400円
									 | 
							
						||
| 築年月 | 1985年11月(築40年) | ||
| 利用制限 | ペット:不可、楽器:不可、ルームシェア:不可 | ||
| 学校区 | 大島小学校(1,206m)・大島中学校(1,067m) | ||
| 設備 | 2階以上、24時間セキュリティー、即引き渡し可、エレベーター、給湯、駐車場あり | ||
| 入居時期 | 即入居可 | ||
| 取引態様 | 仲介 | ||
| 備考 | ・内装工事、撤去費用は借主負担 ・現況渡し  ・他諸条件は協議  | 
						||
| 手数料負担割合/配分割合 | 貸主:-% 借主:-% / 元付:-% 客付:-% | ||
| 取り扱い会社 | 
								 越後交通 株式会社 新潟県長岡市台町2-4-56E・PLAZA1階  | 
						||
| 情報登録日 | 2025/10/27 | 次回更新予定日 | 2025/11/18 | 
| 
																		セブン-イレブン 長岡寺島町店(コンビニ)まで520m ファミリーマート 長岡赤十字病院店(コンビニ)まで580m イオン長岡店(スーパー)まで460m 原信 寺島店(スーパー)まで700m  | 
																
																		えちごメディカル 古正寺薬局、(株)えちごメディカル 本社(ドラッグストア)まで240m 長岡赤十字病院(病院)まで660m 救急救命センター(長岡赤十字病院)(病院)まで660m 長岡市医師会保健衛生センター(病院)まで880m  | 
															
※カメラのアイコンがある場合は、マウスをポイントするとその施設の画像がご覧いただけます。
| TEL: | 0258-30-0114 | |
|---|---|---|
| 所在地: | 新潟県長岡市台町2-4-56E・PLAZA1階 | |
| 交通: | 長岡駅東口バスロータリー前 | |
| 営業時間: | 10:00~18:00/定休日:なし ※年末年始、GWお盆期間は休日がございます。 | |
| 免許番号: | 新潟県知事(16)566号 | 
										
											 | 
								
| 所属団体名: | 新潟県宅地建物取引業協会 長岡支部 | |
| 取引態様: | 仲介 | |
| ホームページ: | http://www.echigo-kotsu.co.jp/fudosan/ | |