物件掲載企業数:297|賃貸物件:3,610件|売買物件:3,333件|今週の登録物件:272
閲覧中のブラウザ(インターネットエクスプローラー)は非推奨ブラウザです。
物件が正しく表示されなかったり、正しく検索されない場合があります。最新のブラウザ(Google Chrome・Edgeなど)にてご利用お願いいたします。
  

新潟県長岡市表町1丁目10-7 マンション 1K 4.9万円の物件情報

リフォーム中 12月中旬入居可予定。 申込み受付中!

物件名
所在地
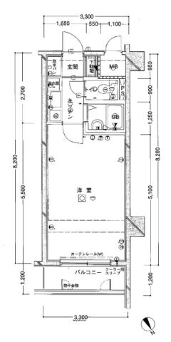
面積
間取り
所在階
築年数
方位
賃料
管理費等
共益費
敷金
保証金
礼金
種別
構造
リバーヴュー長岡 
1306号室
新潟県長岡市表町1丁目10-7
27.06㎡
(8.18坪)
1K
13階
34年
指定なし
4.9万円
なし
なし
1ヶ月
なし
1ヶ月
アパート・マンション・一戸建て
鉄骨鉄筋コン
  • リバーヴュー長岡 
    越後交通 株式会社
  • この物件を問い合わせる/無料
  • TEL: 0258-30-0114

物件画像

外観 間取り
物件画像
※画像クリックで拡大表示
外観
物件画像
※画像クリックで拡大表示
平面図
詳細画像


物件概要

リフォーム中 12月中旬入居可予定。 申込み受付中!
物件コード 00027-100014
物件名 リバーヴュー長岡 
交通 駅:上越新幹線 長岡駅から徒歩10分、バス:大手通2丁目から徒歩4分
所在地 新潟県長岡市表町1丁目10-7
物件種別 アパート・マンション・一戸建て
総戸数 -
構造 鉄骨鉄筋コン 階建 地上14階建
所在階/階数 13階/14階 号室 1306号室
面積 27.06㎡ /8.18坪 方位 指定なし
間取り 1K
洋室約10畳、
水洗トイレ/ウォシュレット/給湯/シャワー/エアコン/BS端子
賃料 4.9万円/月
管理費 -
礼金 1ヶ月
敷金 1ヶ月
ほか初期費用 - その他諸費用 住宅総合保険の更新料
更新料 2年に1回、1ケ月分 火災(家財)保険 加入のこと
共益費 - 町内費 -
駐車場 - バイク料金 -
鍵交換費 - 清掃料 -
更新事務手数料 -
保証区分 連帯保証人のみ
保証会社 区分:指定なし
-
連帯保証人 区分:要
-
仲介手数料 53,900円
築年月 1991年10月(築34年)
利用制限 シニア(60歳以上)入居:相談、ペット:不可、楽器:不可
学校区 表町小学校(698m)・東中学校(1,323m)
設備 最寄り駅近く、エレベーター、宅配BOX、敷地内ゴミ置き場、駐輪場あり、エントランスオートロック、IHクッキングヒーター、バストイレ別、温水洗浄便座、暖房便座、エアコン、オール電化、公営水道、下水、バルコニー、玄関収納、各居室照明、インターネット接続可、バルコニー/駐輪場/エントランスオートロック/オール電化
入居時期 R7年 12月中旬頃
取引態様 代理
備考 更新料(2年)新賃料1ヶ月分
手数料負担割合/配分割合 貸主:-%   借主:-% / 元付:-%   客付:-%  
取り扱い会社

越後交通 株式会社

新潟県長岡市台町2-4-56E・PLAZA1階

情報登録日 2025/11/13 次回更新予定日 2026/01/13
  • リバーヴュー長岡 
    越後交通 株式会社
  • この物件を問い合わせる/無料
  • TEL: 0258-30-0114

この物件の地図・周辺情報・行政情報

この物件の周辺情報・行政情報を詳しく見る
【周辺情報】
物件の近くにあるコンビニや銀行・学校など、アイコン付のマップで詳しく表示できます!
【行政情報】
水道料や下水道料・ガス料金など、暮らしに関係のある情報を表示しています。
セブン-イレブン 長岡表町店(コンビニ)まで300m
セブン-イレブン アオーレ長岡店(コンビニ)まで510m
ウオロク 長岡店(スーパー)まで830m
高須メンタルクリニック(病院)まで520m
湘南美容クリニック長岡院(病院)まで660m
りそな銀行 長岡支店(銀行)まで130m
長岡信用金庫 本店(銀行)まで130m
第四北越銀行 長岡本店営業部(銀行)まで240m
ゆうちょ銀行 長岡店(銀行)まで450m
(株)大光銀行 千手支店(銀行)まで450m
第四北越銀行 長岡市役所支店(銀行)まで530m
ゆうちょ銀行 長岡店(郵便局)まで450m

※カメラのアイコンがある場合は、マウスをポイントするとその施設の画像がご覧いただけます。


担当取扱い店舗情報

取扱い店舗画像
越後交通 株式会社
TEL: 0258-30-0114
所在地: 新潟県長岡市台町2-4-56E・PLAZA1階
交通: 長岡駅東口バスロータリー前
営業時間: 10:00~18:00/定休日:なし ※年末年始、GWお盆期間は休日がございます。
免許番号: 新潟県知事(16)566号 この会社の情報を詳しく見る
所属団体名: 新潟県宅地建物取引業協会 長岡支部
取引態様: 代理
ホームページ: http://www.echigo-kotsu.co.jp/fudosan/