物件掲載企業数:301|賃貸物件:3,261件|売買物件:3,251件|今週の登録物件:296
閲覧中のブラウザ(インターネットエクスプローラー)は非推奨ブラウザです。
物件が正しく表示されなかったり、正しく検索されない場合があります。最新のブラウザ(Google Chrome・Edgeなど)にてご利用お願いいたします。
  

新潟県長岡市原町1丁目2-32 アパート 2K 2.9万円の物件情報

2万円台のお手頃賃料です。

物件名
所在地
面積
間取り
所在階
築年数
方位
賃料
管理費等
共益費
敷金
保証金
礼金
種別
構造
小林荘
201号室
新潟県長岡市原町1丁目2-32
34.71㎡
(10.49坪)
2K
2階
49年
指定なし
2.9万円
なし
なし
2ヶ月
なし
なし
アパート・マンション・一戸建て
木造
  • 小林荘
    越路建設 株式会社
  • この物件を問い合わせる/無料
  • TEL: 0258-34-3433

物件画像

外観 間取り
物件画像
※画像クリックで拡大表示
外観
物件画像
※画像クリックで拡大表示
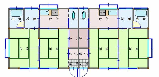
平面図
詳細画像


物件概要

物件コード 00023-100102
物件名 小林荘
交通 駅:信越線 北長岡駅から徒歩38分、バス:OM製作所前から徒歩5分
所在地 新潟県長岡市原町1丁目2-32
物件種別 アパート・マンション・一戸建て
総戸数 -
構造 木造 階建 地上2階建
所在階/階数 2階/2階 号室 201号室
面積 34.71㎡ /10.49坪 方位 指定なし
間取り 2K (和室:6畳、6畳)
賃料 2.9万円/月
管理費 -
礼金 -
敷金 2ヶ月
ほか初期費用 - その他諸費用 共同灯200円
更新料 - 火災(家財)保険 別途加入のこと
共益費 - 町内費 -
駐車場 1台可 バイク料金 -
鍵交換費 - 清掃料 -
更新事務手数料 -
保証区分 連帯保証人のみ
保証会社 区分:指定なし
-
連帯保証人 区分:要
-
仲介手数料 31,900円
築年月 1977年3月(築49年)
利用制限 ペット:不可、楽器:不可
学校区 黒条小学校(2,007m)・堤岡中学校(1,954m)
設備 駐車場1台無料、バストイレ別、LPG
入居時期 即入居可
取引態様 仲介
備考 -
手数料負担割合/配分割合 貸主:-%   借主:100% / 元付:50%   客付:50%  
取り扱い会社

越路建設 株式会社

新潟県長岡市新町1-3-30

情報登録日 2023/11/17 次回更新予定日 2026/06/05
  • 小林荘
    越路建設 株式会社
  • この物件を問い合わせる/無料
  • TEL: 0258-34-3433

この物件の地図・周辺情報・行政情報

この物件の周辺情報・行政情報を詳しく見る
【周辺情報】
物件の近くにあるコンビニや銀行・学校など、アイコン付のマップで詳しく表示できます!
【行政情報】
水道料や下水道料・ガス料金など、暮らしに関係のある情報を表示しています。

担当取扱い店舗情報

取扱い店舗画像
越路建設 株式会社
TEL: 0258-34-3433
所在地: 新潟県長岡市新町1-3-30
交通: 新町1丁目バス停徒歩1分(ファミリーマート向かい)
営業時間: 8:30~17:30/定休日:土曜・日曜・祭日
免許番号: 新潟県知事(7)4072号 この会社の情報を詳しく見る
所属団体名: 新潟県宅地建物取引業協会 長岡支部
取引態様: 仲介
ホームページ: http://www.koshiken.com/