物件掲載企業数:301|賃貸物件:3,259件|売買物件:3,254件|今週の登録物件:264
閲覧中のブラウザ(インターネットエクスプローラー)は非推奨ブラウザです。
物件が正しく表示されなかったり、正しく検索されない場合があります。最新のブラウザ(Google Chrome・Edgeなど)にてご利用お願いいたします。
  

新潟県長岡市上除町西1丁目247番地 アパート 1K 4万円の物件情報

コンビニ、国道8号まで車で2分

物件名
所在地
面積
間取り
所在階
築年数
方位
賃料
管理費等
共益費
敷金
保証金
礼金
種別
構造
サンブレスA-3
A-3号室
新潟県長岡市上除町西1丁目247番地
26.49㎡
(8.01坪)
1K
1階
29年
-
4万円
なし
なし
1ヶ月
なし
なし
アパート・マンション・一戸建て
木造
  • サンブレスA-3
    青葉不動産
  • この物件を問い合わせる/無料
  • TEL: 0258-46-6673

物件画像

外観 間取り
物件画像
※画像クリックで拡大表示
外観
物件画像
※画像クリックで拡大表示
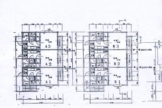
平面図
詳細画像


物件概要

物件コード 00018-100059
物件名 サンブレスA-3
交通 バス:関原南から徒歩7分
所在地 新潟県長岡市上除町西1丁目247番地
物件種別 アパート・マンション・一戸建て
総戸数 6戸
構造 木造 階建 地上2階建
所在階/階数 1階/2階 号室 A-3号室
面積 26.49㎡ /8.01坪 方位 -
間取り 1K (洋室:8)
水洗トイレ/洗濯機置場/給湯/シャワー/エアコン
賃料 4万円/月
管理費 -
礼金 -
敷金 1ヶ月
ほか初期費用 - その他諸費用 あり
更新料 - 火災(家財)保険 19,000円(家財2年)
共益費 - 町内費 350円
駐車場 消雪パイプ有り バイク料金 -
鍵交換費 - 清掃料 -
更新事務手数料 -
保証区分 連帯保証人のみ
保証会社 区分:指定なし
-
連帯保証人 区分:要
-
仲介手数料 44,000円
築年月 1997年4月(築29年)
利用制限 ペット:不可
学校区 日越小学校(1,802m)・西中学校(3,025m)
設備 閑静な住宅街、駐車場1台無料、南向き、バストイレ別、温水洗浄便座、エアコン、都市ガス、全居室フローリング、即入居可、フローリング/バルコニー/日当り良好/駐車場あり/融雪パイプあり/都市ガス
入居時期 即入居可
取引態様 仲介
備考 -
手数料負担割合/配分割合 貸主:-%   借主:-% / 元付:-%   客付:-%  
取り扱い会社

青葉不動産

新潟県長岡市関原南1-4344

情報登録日 2024/02/20 次回更新予定日 2026/06/06
  • サンブレスA-3
    青葉不動産
  • この物件を問い合わせる/無料
  • TEL: 0258-46-6673

この物件の地図・周辺情報・行政情報

この物件の周辺情報・行政情報を詳しく見る
【周辺情報】
物件の近くにあるコンビニや銀行・学校など、アイコン付のマップで詳しく表示できます!
【行政情報】
水道料や下水道料・ガス料金など、暮らしに関係のある情報を表示しています。

担当取扱い店舗情報

取扱い店舗画像
青葉不動産
TEL: 0258-46-6673
所在地: 新潟県長岡市関原南1-4344
交通:
営業時間: 9:00~17:00/定休日:日曜・祭日
免許番号: 新潟県知事(8)2804号 この会社の情報を詳しく見る
所属団体名: 新潟県宅地建物取引業協会 長岡支部
取引態様: 仲介