物件掲載企業数:299|賃貸物件:3,627件|売買物件:3,333件|今週の登録物件:211
閲覧中のブラウザ(インターネットエクスプローラー)は非推奨ブラウザです。
物件が正しく表示されなかったり、正しく検索されない場合があります。最新のブラウザ(Google Chrome・Edgeなど)にてご利用お願いいたします。
  

新潟県長岡市曙1丁目2番地15 事務所 16.5万円の物件情報

人気の宮内エリアに貸事務所物件(スケルトン予定)がでました。駐車スペースも充実で立地も抜群です。

物件名
所在地
面積
間取り
所在階
築年数
方位
賃料
管理費等
共益費
敷金
保証金
礼金
種別
構造
【貸事務所】長岡市曙1丁目貸事務所(スケルトン貸)
新潟県長岡市曙1丁目2番地15
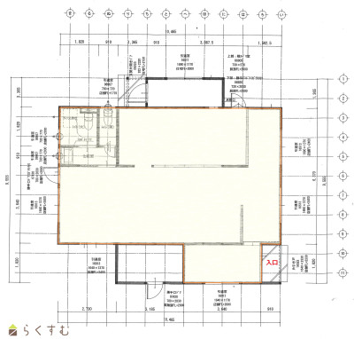
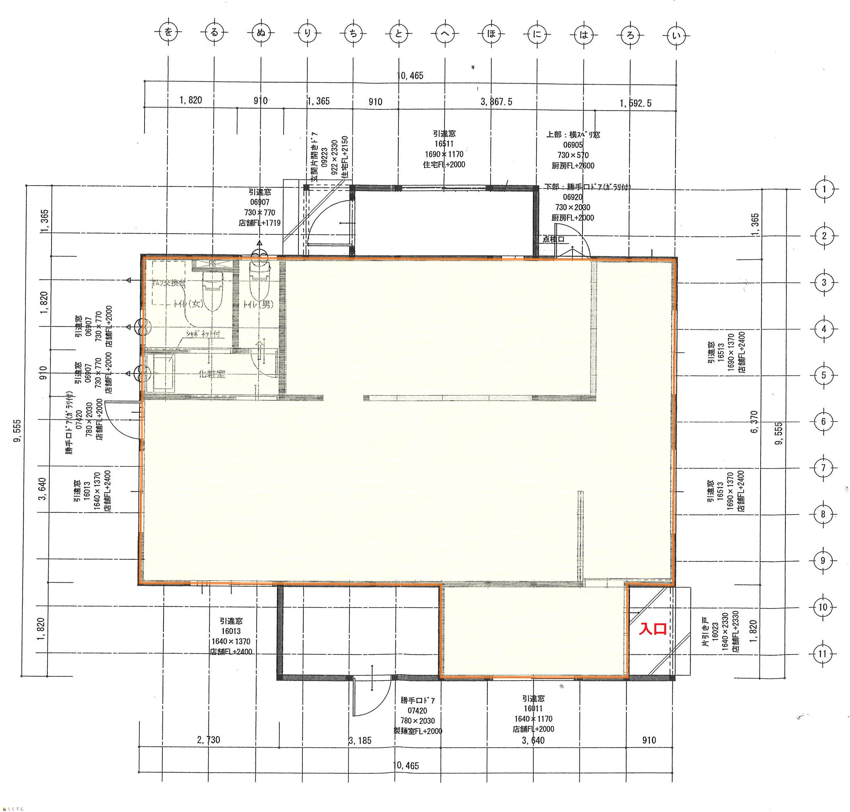
73.28㎡
(22.16坪)
-
1階
7年
-
16.5万円
2,000円/月
なし
3ヶ月
なし
なし
事務所
木造
  • 【貸事務所】長岡市曙1丁目貸事務所(スケルトン貸)
    有限会社 ABCホーム
  • この物件を問い合わせる/無料
  • TEL: 0258-35-6682

物件画像

外観 間取り
物件画像
※画像クリックで拡大表示
外観①
物件画像
※画像クリックで拡大表示
間取り
詳細画像


物件概要

物件コード 00017-100111
物件名 【貸事務所】長岡市曙1丁目貸事務所(スケルトン貸)
交通 駅:信越線 宮内駅から徒歩14分、バス:曙1丁目から徒歩1分
所在地 新潟県長岡市曙1丁目2番地15
物件種別 事務所
総戸数 1戸
構造 木造 階建 地上2階建
所在階/階数 1階/2階 号室 -
面積 73.28㎡ /22.16坪 方位 -
間取り -
賃料 16.5万円/月
内消費税15,000円
管理費 2,000円/月
礼金 - 敷金 3ヶ月
ほか初期費用 - その他諸費用 -
更新料 - 火災(家財)保険 借主にて要加入
共益費 - 町内費 実費
駐車場 6台分賃料に含む 追加1台につき4,400円 バイク料金 -
鍵交換費 - 清掃料 -
更新事務手数料 -
保証区分 保証会社+緊急連絡先
保証会社 区分:加入要
保証会社名:日本インシュア
-
家賃保証金 165,000円
連帯保証人 区分:不要
-
仲介手数料 165,000円
築年月 2018年2月(築7年)
利用制限 学生:不可、単身者:不可、二人入居:不可、シニア(60歳以上)入居:不可、子供:不可、ペット:不可、楽器:不可、事務所利用:可、ルームシェア:相談
学校区 豊田小学校(855m)・旭岡中学校(875m)
設備 1階、融雪設備あり、男女トイレ別、スケルトン、駐車場あり
入居時期 相談
取引態様 仲介
備考 内覧の際は、営業中のお店に相談が必要になりますので事前にご連絡ください。
看板取付スペースあり、トイレ、エアコンあり。
スケルトン工事の内容は貸主様と打合せ可能です。その他内装工事費用は借主様負担でお願いします。
事務所以外の利用を希望される場合は貸主様と相談となります。
手数料負担割合/配分割合 貸主:-%   借主:-% / 元付:-%   客付:-%  
取り扱い会社

有限会社 ABCホーム

新潟県長岡市曙1-1-7

情報登録日 2025/09/24 次回更新予定日 2025/11/09
  • 【貸事務所】長岡市曙1丁目貸事務所(スケルトン貸)
    有限会社 ABCホーム
  • この物件を問い合わせる/無料
  • TEL: 0258-35-6682

この物件の地図・周辺情報・行政情報

この物件の周辺情報・行政情報を詳しく見る
【周辺情報】
物件の近くにあるコンビニや銀行・学校など、アイコン付のマップで詳しく表示できます!
【行政情報】
水道料や下水道料・ガス料金など、暮らしに関係のある情報を表示しています。
ローソン 長岡笹崎一丁目店(コンビニ)まで130m
原信 宮内店(スーパー)まで430m
みなみ薬局(ドラッグストア)まで380m
長岡信用金庫 宮内支店(銀行)まで910m
越後宮内郵便局(郵便局)まで710m

※カメラのアイコンがある場合は、マウスをポイントするとその施設の画像がご覧いただけます。


担当取扱い店舗情報

取扱い店舗画像
有限会社 ABCホーム
TEL: 0258-35-6682
所在地: 新潟県長岡市曙1-1-7
交通:
営業時間: 9:00~18:00/定休日:
免許番号: 新潟県知事(4)4781号 この会社の情報を詳しく見る
所属団体名: 新潟県宅地建物取引業協会 長岡支部
取引態様: 仲介
ホームページ: http://abc-home.d.dooo.jp/