物件掲載企業数:301|賃貸物件:3,261件|売買物件:3,251件|今週の登録物件:296
閲覧中のブラウザ(インターネットエクスプローラー)は非推奨ブラウザです。
物件が正しく表示されなかったり、正しく検索されない場合があります。最新のブラウザ(Google Chrome・Edgeなど)にてご利用お願いいたします。
  

新潟県長岡市西宮内2丁目133 倉庫・工場・その他 38万円の物件情報

物件名
所在地
面積
間取り
所在階
築年数
方位
賃料
管理費等
共益費
敷金
保証金
礼金
種別
構造
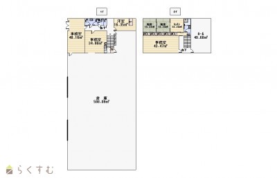
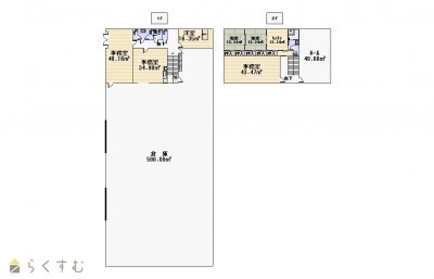
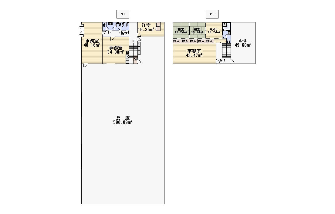
西宮内2丁目 貸倉庫 251坪
新潟県長岡市西宮内2丁目133
832.33㎡
(251.77坪)
-
-
46年
-
38万円
なし
なし
3ヶ月
なし
なし
倉庫・工場・その他
鉄骨
  • 西宮内2丁目 貸倉庫 251坪
    株式会社 金井不動産
  • この物件を問い合わせる/無料
  • TEL: 0120-35-3901

物件画像

外観 間取り
物件画像
※画像クリックで拡大表示
物件画像
※画像クリックで拡大表示
詳細画像


物件概要

物件コード 00014-100504
物件名 西宮内2丁目 貸倉庫 251坪
交通 駅:信越線 宮内駅から徒歩20分、バス:三和町から徒歩4分
所在地 新潟県長岡市西宮内2丁目133
物件種別 倉庫・工場・その他
総戸数 -
構造 鉄骨 階建 地上2階建
所在階/階数 - 号室 -
面積 832.33㎡ /251.77坪 方位 -
間取り -
賃料 38万円/月
管理費 -
礼金 -
敷金 3ヶ月
ほか初期費用 - その他諸費用 -
更新料 - 火災(家財)保険 別途
共益費 - 町内費 別途
駐車場
バイク料金 -
鍵交換費 - 清掃料 -
更新事務手数料 -
保証区分 連帯保証人のみ
保証会社 区分:指定なし
-
連帯保証人 区分:要
-
仲介手数料 418,000円
築年月 1979年12月(築46年)
利用制限 -
学校区 宮内小学校(596m)・宮内中学校(796m)
設備 駐車場あり
入居時期 2026年2月~
取引態様 仲介
備考 -
手数料負担割合/配分割合 貸主:0%   借主:100% / 元付:50%   客付:50%  
取り扱い会社

株式会社 金井不動産

新潟県長岡市要町3-1-26

情報登録日 2025/06/16 次回更新予定日 2026/06/05
  • 西宮内2丁目 貸倉庫 251坪
    株式会社 金井不動産
  • この物件を問い合わせる/無料
  • TEL: 0120-35-3901

この物件の地図・周辺情報・行政情報

この物件の周辺情報・行政情報を詳しく見る
【周辺情報】
物件の近くにあるコンビニや銀行・学校など、アイコン付のマップで詳しく表示できます!
【行政情報】
水道料や下水道料・ガス料金など、暮らしに関係のある情報を表示しています。

担当取扱い店舗情報

取扱い店舗画像
株式会社 金井不動産
TEL: 0120-35-3901
所在地: 新潟県長岡市要町3-1-26
交通: 長岡駅大手口①バス乗場より乗車~溝橋下車徒歩約4分
営業時間: 9:30~18:00/定休日:日曜・祝祭日
免許番号: 新潟県知事(16)第495号 この会社の情報を詳しく見る
所属団体名: 新潟県宅地建物取引業協会 長岡支部
取引態様: 仲介
ホームページ: http://www.3901.com