物件掲載企業数:301|賃貸物件:3,261件|売買物件:3,251件|今週の登録物件:296
閲覧中のブラウザ(インターネットエクスプローラー)は非推奨ブラウザです。
物件が正しく表示されなかったり、正しく検索されない場合があります。最新のブラウザ(Google Chrome・Edgeなど)にてご利用お願いいたします。
  

新潟県長岡市東蔵王2-6-20 事務所 8.9万円の物件情報

約24坪の事務所です。

物件名
所在地
面積
間取り
所在階
築年数
方位
賃料
管理費等
共益費
敷金
保証金
礼金
種別
構造
東蔵王2丁目 『吉沢ビル 左棟 2階』
新潟県長岡市東蔵王2-6-20
79.2㎡
(23.95坪)
-
2階
34年
-
8.9万円
なし
なし
2ヶ月
なし
なし
事務所
鉄骨
  • 東蔵王2丁目 『吉沢ビル 左棟 2階』
    ㈱スタッフサイトウ不動産部
  • この物件を問い合わせる/無料
  • TEL: 0258-24-0623

物件画像

外観 間取り
物件画像
※画像クリックで拡大表示
正面より
物件画像
※画像クリックで拡大表示
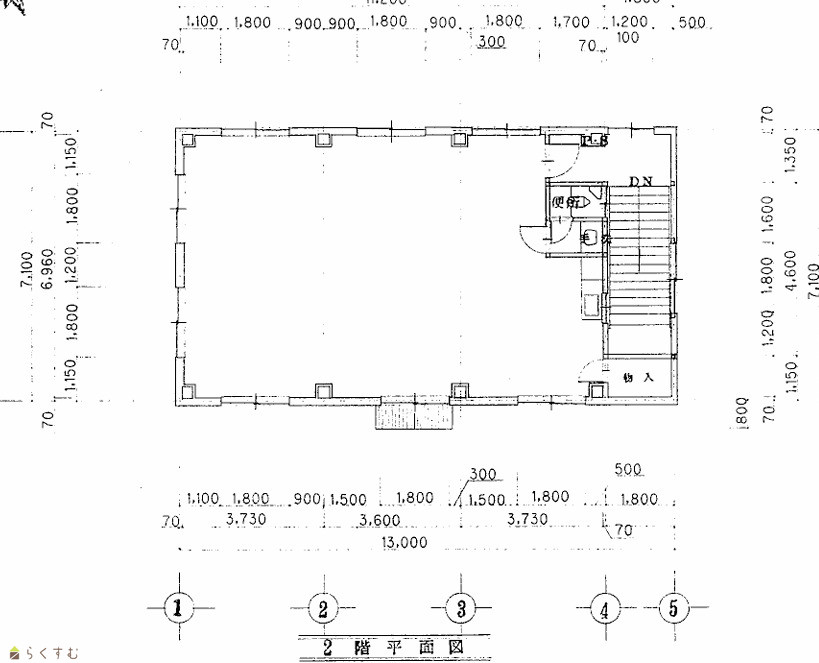
間取り
詳細画像


物件概要

物件コード 00011-100519
物件名 東蔵王2丁目 『吉沢ビル 左棟 2階』
交通 駅:信越線 北長岡駅から徒歩21分、バス:北中学校前から徒歩3分
所在地 新潟県長岡市東蔵王2-6-20
物件種別 事務所
総戸数 -
構造 鉄骨 階建 地上2階建
所在階/階数 2階/2階 号室 -
面積 79.2㎡ /23.95坪 方位 -
間取り -
賃料 8.9万円/月
管理費 -
礼金 -
敷金 2ヶ月
ほか初期費用 - その他諸費用 -
更新料 - 火災(家財)保険 加入の事
共益費 - 町内費 -
駐車場 6,000円
1台 6000円 駐車料金かかります
バイク料金 -
鍵交換費 - 清掃料 -
更新事務手数料 -
保証区分 連帯保証人+緊急連絡先
保証会社 区分:指定なし
-
連帯保証人 区分:要
-
仲介手数料 97,900円
築年月 1991年9月(築34年)
利用制限 ペット:不可、楽器:不可
学校区 新町小学校(949m)・北中学校(185m)
設備 2階以上、融雪設備あり、エアコン、即引き渡し可、給湯
入居時期 即入居可
取引態様 仲介
備考 賃料別途消費税がかかります
手数料負担割合/配分割合 貸主:-%   借主:100% / 元付:50%   客付:50%  
取り扱い会社

㈱スタッフサイトウ不動産部

新潟県長岡市蔵王2丁目4番17号

情報登録日 2025/07/16 次回更新予定日 2026/06/05
  • 東蔵王2丁目 『吉沢ビル 左棟 2階』
    ㈱スタッフサイトウ不動産部
  • この物件を問い合わせる/無料
  • TEL: 0258-24-0623

この物件の地図・周辺情報・行政情報

この物件の周辺情報・行政情報を詳しく見る
【周辺情報】
物件の近くにあるコンビニや銀行・学校など、アイコン付のマップで詳しく表示できます!
【行政情報】
水道料や下水道料・ガス料金など、暮らしに関係のある情報を表示しています。
セブン-イレブン 長岡北中学校前店(コンビニ)まで300m
チャレンジャー 北長岡店(スーパー)まで980m

※カメラのアイコンがある場合は、マウスをポイントするとその施設の画像がご覧いただけます。


担当取扱い店舗情報

取扱い店舗画像
㈱スタッフサイトウ不動産部
TEL: 0258-24-0623
所在地: 新潟県長岡市蔵王2丁目4番17号
交通: JR北長岡駅
営業時間: 8:30~17:30/定休日:第2・4土曜・日曜・祭日
免許番号: 新潟県知事(2)第5364号 この会社の情報を詳しく見る
所属団体名: 新潟県宅地建物取引業協会 長岡支部
取引態様: 仲介
ホームページ: http://hokuetsu-fudousan.com