物件掲載企業数:301|賃貸物件:3,261件|売買物件:3,251件|今週の登録物件:296
閲覧中のブラウザ(インターネットエクスプローラー)は非推奨ブラウザです。
物件が正しく表示されなかったり、正しく検索されない場合があります。最新のブラウザ(Google Chrome・Edgeなど)にてご利用お願いいたします。
  

新潟県長岡市東蔵王2-6-26 事務所 6万円の物件情報

95.87㎡ 広いスペースの事務所です。

物件名
所在地
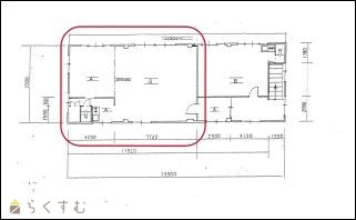
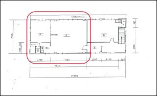
面積
間取り
所在階
築年数
方位
賃料
管理費等
共益費
敷金
保証金
礼金
種別
構造
東蔵王2丁目 『吉沢ビル 右棟3階』 A号室
A号室
新潟県長岡市東蔵王2-6-26
95.87㎡
(29坪)
-
3階
40年
-
6万円
なし
なし
3ヶ月
なし
なし
事務所
鉄骨
  • 東蔵王2丁目 『吉沢ビル 右棟3階』 A号室
    ㈱スタッフサイトウ不動産部
  • この物件を問い合わせる/無料
  • TEL: 0258-24-0623

物件画像

外観 間取り
物件画像
※画像クリックで拡大表示
外観
物件画像
※画像クリックで拡大表示
間取り
詳細画像


物件概要

駐車場1台6,000円かかります
物件コード 00011-100396
物件名 東蔵王2丁目 『吉沢ビル 右棟3階』 A号室
交通 駅:信越線 北長岡駅から徒歩30分、バス:北中学校前から徒歩3分
所在地 新潟県長岡市東蔵王2-6-26
物件種別 事務所
総戸数 -
構造 鉄骨 階建 地上3階建
所在階/階数 3階/3階 号室 A号室
面積 95.87㎡ /29坪 方位 -
間取り -
賃料 6万円/月
管理費 -
礼金 -
敷金 3ヶ月
ほか初期費用 - その他諸費用 融雪電気代別途必要
更新料 - 火災(家財)保険 加入の事
共益費 - 町内費 -
駐車場 - バイク料金 -
鍵交換費 - 清掃料 -
更新事務手数料 -
保証区分 連帯保証人+緊急連絡先
保証会社 区分:指定なし
-
連帯保証人 区分:要
-
仲介手数料 66,000円
築年月 1986年2月(築40年)
利用制限 -
学校区 新町小学校(927m)・北中学校(211m)
設備 最上階、融雪設備あり、エアコン、給湯、駐車場あり
入居時期 相談
取引態様 代理
備考 融雪電気代別途必要
賃料 消費税がかかります。
手数料負担割合/配分割合 貸主:-%   借主:100% / 元付:50%   客付:50%  
取り扱い会社

㈱スタッフサイトウ不動産部

新潟県長岡市蔵王2丁目4番17号

情報登録日 2025/10/20 次回更新予定日 2026/06/05
  • 東蔵王2丁目 『吉沢ビル 右棟3階』 A号室
    ㈱スタッフサイトウ不動産部
  • この物件を問い合わせる/無料
  • TEL: 0258-24-0623

この物件の地図・周辺情報・行政情報

この物件の周辺情報・行政情報を詳しく見る
【周辺情報】
物件の近くにあるコンビニや銀行・学校など、アイコン付のマップで詳しく表示できます!
【行政情報】
水道料や下水道料・ガス料金など、暮らしに関係のある情報を表示しています。

担当取扱い店舗情報

取扱い店舗画像
㈱スタッフサイトウ不動産部
TEL: 0258-24-0623
所在地: 新潟県長岡市蔵王2丁目4番17号
交通: JR北長岡駅
営業時間: 8:30~17:30/定休日:第2・4土曜・日曜・祭日
免許番号: 新潟県知事(2)第5364号 この会社の情報を詳しく見る
所属団体名: 新潟県宅地建物取引業協会 長岡支部
取引態様: 代理
ホームページ: http://hokuetsu-fudousan.com