物件掲載企業数:297|賃貸物件:3,610件|売買物件:3,333件|今週の登録物件:272
閲覧中のブラウザ(インターネットエクスプローラー)は非推奨ブラウザです。
物件が正しく表示されなかったり、正しく検索されない場合があります。最新のブラウザ(Google Chrome・Edgeなど)にてご利用お願いいたします。
  

新潟県長岡市地蔵2丁目1番18号 アパート 2DK 4.3万円の物件情報

★ケーブルTV基本利用料無料★南向きの明るいお部屋です!! 

物件名
所在地
面積
間取り
所在階
築年数
方位
賃料
管理費等
共益費
敷金
保証金
礼金
種別
構造
コーポカナル(201)
201号室
新潟県長岡市地蔵2丁目1番18号
45.03㎡
(13.62坪)
2DK
1階
35年
指定なし
4.3万円
なし
なし
1ヶ月
なし
なし
アパート・マンション・一戸建て
木造
  • コーポカナル(201)
    株式会社 島岡不動産企画
  • この物件を問い合わせる/無料
  • TEL: 0258-39-6030

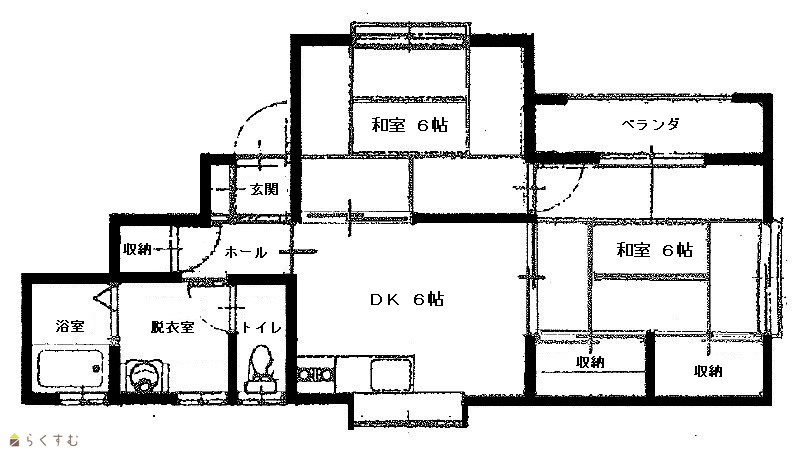
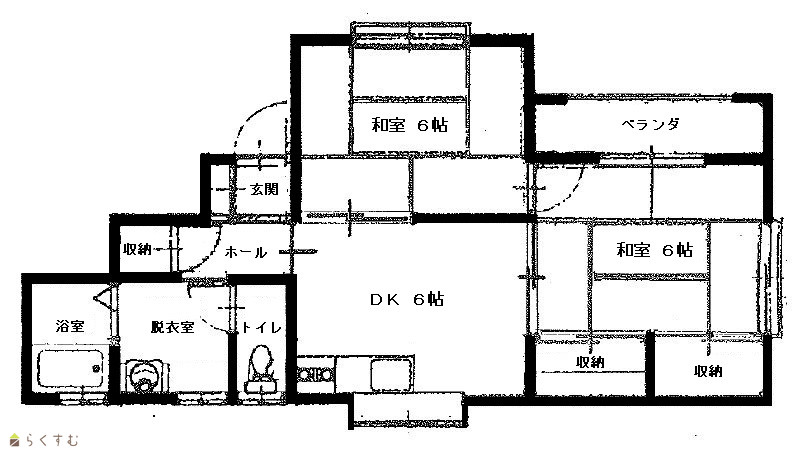
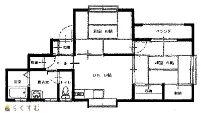
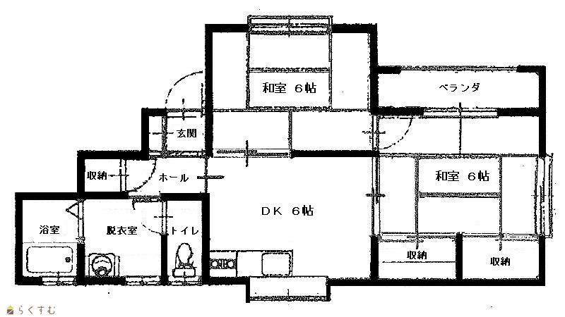
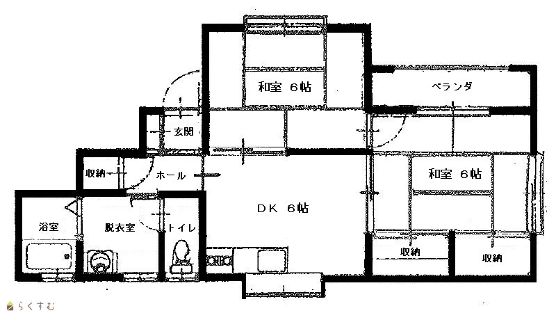
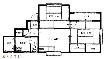
物件画像

外観 間取り
物件画像
※画像クリックで拡大表示
外観
物件画像
※画像クリックで拡大表示
平面図
詳細画像


物件概要

物件コード 00008-100003
物件名 コーポカナル(201)
交通 バス:干場から徒歩3分
所在地 新潟県長岡市地蔵2丁目1番18号
物件種別 アパート・マンション・一戸建て
総戸数 4戸
構造 木造 階建 地上2階建
所在階/階数 1階/2階 号室 201号室
面積 45.03㎡ /13.62坪 方位 指定なし
間取り 2DK (和室:6畳、6畳)
DK6
賃料 4.3万円/月
管理費 -
礼金 -
敷金 1ヶ月
ほか初期費用 - その他諸費用 -
更新料 - 火災(家財)保険 17,860円
2ヶ年
共益費 - 町内費 700円
駐車場 1台分込み バイク料金 -
鍵交換費 - 清掃料 -
契約時保証料 26,220円
毎月保証料 650円
更新事務手数料 -
保証区分 保証会社+緊急連絡先
保証会社 区分:加入要
保証会社名:ジェイリース
-
連帯保証人 区分:不要
-
仲介手数料 47,300円
築年月 1990年4月(築35年)
利用制限 ペット:不可
学校区 川崎小学校(366m)・東北中学校(532m)
設備 駐車場1台無料、角住居、洗面所独立、エアコン、都市ガス、バルコニー、玄関収納、駐車場1台分込み・融雪装置・トイレバス独立・シャワー・ケーブルTV・エアコン
入居時期 即入居可
取引態様 仲介
備考 追加駐車場 軽3,000円
手数料負担割合/配分割合 貸主:-%   借主:100% / 元付:50%   客付:50%  
取り扱い会社

株式会社 島岡不動産企画

新潟県長岡市西新町1-8-11

情報登録日 2024/03/21 次回更新予定日 2026/01/13
  • コーポカナル(201)
    株式会社 島岡不動産企画
  • この物件を問い合わせる/無料
  • TEL: 0258-39-6030

この物件の地図・周辺情報・行政情報

この物件の周辺情報・行政情報を詳しく見る
【周辺情報】
物件の近くにあるコンビニや銀行・学校など、アイコン付のマップで詳しく表示できます!
【行政情報】
水道料や下水道料・ガス料金など、暮らしに関係のある情報を表示しています。

担当取扱い店舗情報

取扱い店舗画像
株式会社 島岡不動産企画
TEL: 0258-39-6030
所在地: 新潟県長岡市西新町1-8-11
交通: 「新町小学校前」バス停徒歩1分
営業時間: 9:00~18:30/定休日:日曜・祭日
免許番号: 新潟県知事(4)4829号 この会社の情報を詳しく見る
所属団体名: 公益社団法人 新潟県宅地建物取引業協会
取引態様: 仲介
ホームページ: http://www.shimaoka.co.jp