物件掲載企業数:295|賃貸物件:3,347件|売買物件:3,307件|今週の登録物件:362
閲覧中のブラウザ(インターネットエクスプローラー)は非推奨ブラウザです。
物件が正しく表示されなかったり、正しく検索されない場合があります。最新のブラウザ(Google Chrome・Edgeなど)にてご利用お願いいたします。
  

新潟県長岡市古正寺町6-8 アパート 1K 4万円の物件情報

お買い物施設が充実している古正寺地区の1Kアパート!

物件名
所在地
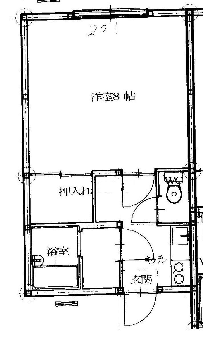
面積
間取り
所在階
築年数
方位
賃料
管理費等
共益費
敷金
保証金
礼金
種別
構造
メゾン・ミレニアムW
201号室
新潟県長岡市古正寺町6-8
24.09㎡
(7.28坪)
1K
2階
25年
4万円
なし
なし
2ヶ月
なし
なし
アパート・マンション・一戸建て
木造
  • メゾン・ミレニアムW
    株式会社 長岡土地
  • この物件を問い合わせる/無料
  • TEL: 0258-33-4844

物件画像

外観 間取り
物件画像
※画像クリックで拡大表示
外観
物件画像
※画像クリックで拡大表示
間取り
詳細画像
360度画像
キッチン
※下のリンクをクリックすると、上の画像が切り替わります。

インターネットエクスプローラーでは360°画像は閲覧できません。それ以外のブラウザでご覧下さい。



物件概要

物件コード 00006-100143
物件名 メゾン・ミレニアムW
交通 バス:長岡西病院前から徒歩2分
所在地 新潟県長岡市古正寺町6-8
物件種別 アパート・マンション・一戸建て
総戸数 6戸
構造 木造 階建 地上2階建
所在階/階数 2階/2階 号室 201号室
面積 24.09㎡ /7.28坪 方位
間取り 1K (洋室:8)
K
賃料 4万円/月
管理費 -
礼金 -
敷金 2ヶ月
ほか初期費用 - その他諸費用 -
更新料 - 火災(家財)保険 20,000円
別途加入(目安金額)
共益費 - 町内費 500円
駐車場
1台込み
バイク料金 -
鍵交換費 - 清掃料 -
月額保証料 550円
更新事務手数料 22,000円
2年毎
保証区分 保証会社+緊急連絡先
保証会社 区分:加入要
保証会社名:全保連
契約時月額総賃料の50%、月額550円、1年毎10,000円
家賃保証金 20,250円
連帯保証人 区分:不要
-
仲介手数料 44,000円
築年月 2000年3月(築25年)
利用制限 法人:相談、単身者:可、ペット:不可、楽器:不可、事務所利用:不可
学校区 大島小学校(710m)・大島中学校(229m)
設備 最上階、駐車場1台無料、角住居、バストイレ別、温水洗浄便座、エアコン、都市ガス、洗濯機置場 室内、押入、各居室照明
入居時期 2026年2月下旬予定
取引態様 仲介
備考 画像と現況が異なる場合、現況を優先します。/2年毎更新事務手数料22,000円(税込)/1年未満で解約の場合、賃料1ヶ月相当の違約金有り。/鍵交換費用実費
手数料負担割合/配分割合 貸主:-%   借主:100% / 元付:-%   客付:-%  
取り扱い会社

株式会社 長岡土地

新潟県長岡市東坂之上町3-4-8

情報登録日 2026/01/30 次回更新予定日 2026/03/06
  • メゾン・ミレニアムW
    株式会社 長岡土地
  • この物件を問い合わせる/無料
  • TEL: 0258-33-4844

この物件の地図・周辺情報・行政情報

この物件の周辺情報・行政情報を詳しく見る
【周辺情報】
物件の近くにあるコンビニや銀行・学校など、アイコン付のマップで詳しく表示できます!
【行政情報】
水道料や下水道料・ガス料金など、暮らしに関係のある情報を表示しています。
セブン-イレブン 長岡喜多町店(コンビニ)まで480m
ローソン 長岡喜多町店(コンビニ)まで710m
原信 古正寺店(スーパー)まで520m
良食生活館 きたまち店(スーパー)まで700m
ウエルシア長岡西津町店 (調剤薬局)(ドラッグストア)まで500m
ドラッグトップス 古正寺薬局(ドラッグストア)まで600m
長岡西病院(病院)まで190m

※カメラのアイコンがある場合は、マウスをポイントするとその施設の画像がご覧いただけます。


担当取扱い店舗情報

取扱い店舗画像
株式会社 長岡土地
TEL: 0258-33-4844
所在地: 新潟県長岡市東坂之上町3-4-8
交通: 長岡駅大手口より徒歩約10分
営業時間: 8:30~18:30/定休日:水曜日・祝祭日(他 GW、夏季休暇、年末年始等)
免許番号: 新潟県知事(9)3247号 この会社の情報を詳しく見る
所属団体名: 全国宅地建物取引業協会 長岡支部
取引態様: 仲介
ホームページ: https://nagaokatoti.com