物件掲載企業数:295|賃貸物件:3,290件|売買物件:3,306件|今週の登録物件:347
閲覧中のブラウザ(インターネットエクスプローラー)は非推奨ブラウザです。
物件が正しく表示されなかったり、正しく検索されない場合があります。最新のブラウザ(Google Chrome・Edgeなど)にてご利用お願いいたします。
  

全エリア賃貸アパート・賃貸マンション・賃貸一戸建て一覧

表示切替: 一覧表示 地図表示    並び替え:
画像 物件名
所在地
取扱店
面積
間取り
所在階
築年数
賃料
管理費等
共益費
敷金
保証金
礼金
物件画像
物件画像
物件画像
物件画像
詳細☆お気に入り★お気に入り
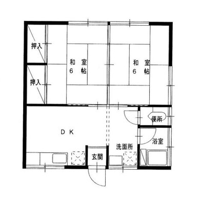
笹崎コーポ
5号室
    新潟県長岡市笹崎1丁目4-4
    (アパート・マンション・一戸建て)
    40.5㎡
    (12.25坪)
    2DK
    2階
    43年
    3.8万円
    なし
    なし
    1ヶ月
    なし
    なし
    写真たくさんあり!!
    賃料は3万8千円、賃料に駐車場1台込み。2台目は近隣駐車場5,000円(要空き確認)。キッチンを間にして和室6畳が二部屋、2階東南角のお部屋です。モニター付きインターフォン付き
    物件画像
    物件画像
    物件画像
    物件画像
    詳細☆お気に入り★お気に入り
    レジデンスかつらⅠ
    202号室
      長岡市新保1-16-2
      (アパート・マンション・一戸建て)
      38.6㎡
      (11.67坪)
      2DK
      2階
      38年
      3.8万円
      なし
      なし
      2ヶ月
      なし
      なし
      写真たくさんあり!!
      物件画像
      物件画像
      物件画像
      物件画像
      詳細☆お気に入り★お気に入り
      ビバリーコーポラスⅡ
      201号室
        新潟県長岡市平島3-128
        (アパート・マンション・一戸建て)
        25.38㎡
        (7.67坪)
        1K
        2階
        30年
        3.8万円
        なし
        なし
        1ヶ月
        なし
        なし
        写真たくさんあり!!
        長岡駅まで徒歩約8分!
        物件画像
        物件画像
        物件画像
        物件画像
        詳細☆お気に入り★お気に入り
        長岡ビル
        410号室
          新潟県長岡市長町1丁目1-12
          (アパート・マンション・一戸建て)
          41.4㎡
          (12.52坪)
          2K
          4階
          不詳
          3.8万円
          なし
          なし
          2ヶ月
          なし
          なし
          一人暮らしに最適な間取り♪岩盤浴で人気のほっとぴあにも歩いてすぐです♪
          物件画像
          物件画像
          物件画像
          物件画像
          詳細☆お気に入り★お気に入り
          コーポ今善 ※一人暮らし向け ※安心鉄骨造り
          6号室
            新潟県見附市新町1丁目1-5
            (アパート・マンション・一戸建て)
            23.1㎡
            (6.98坪)
            1K
            3階
            50年
            3.8万円
            なし
            あり
            4.5万円
            なし
            なし
            写真たくさんあり!!
            小・中学校近く!公園近くにあります。
            物件画像
            物件画像
            物件画像
            物件画像
            詳細☆お気に入り★お気に入り
            ミルクハウス 
            D号室
              新潟県長岡市高見1丁目12-12
              (アパート・マンション・一戸建て)
              37.6㎡
              (11.37坪)
              2K
              2階
              37年
              3.8万円
              2,000円/月
              なし
              2ヶ月
              なし
              なし
              ☆1Gbps高速光ファイバー・Wi-Fi無料で使えます☆一人暮らしでも安心TVドアホン付です。トイレ温水洗浄便座付
              物件画像
              物件画像
              物件画像
              物件画像
              詳細☆お気に入り★お気に入り
              フォレスト
              207号室
                新潟県長岡市江陽1丁目15-24
                (アパート・マンション・一戸建て)
                26.22㎡
                (7.93坪)
                1K
                2階
                31年
                3.8万円
                2,000円/月
                なし
                1ヶ月
                なし
                なし
                写真たくさんあり!!
                物件画像
                物件画像
                物件画像
                物件画像
                詳細☆お気に入り★お気に入り
                フローレスフォー
                201号室
                  新潟県長岡市宮内4-2-7
                  (アパート・マンション・一戸建て)
                  29.97㎡
                  (9.06坪)
                  2DK
                  2階
                  37年
                  3.8万円
                  なし
                  なし
                  1ヶ月
                  なし
                  なし
                  写真たくさんあり!!
                  ★2026年2月内装リフォームしました★【初期費用4,180円でフレッツ光インターネットが使い放題です★】追い焚き機能付き・独立洗面台・温水洗浄便座など嬉しい設備あり✿駐車場1台付き(追加不可)
                  物件画像
                  物件画像
                  物件画像
                  物件画像
                  詳細☆お気に入り★お気に入り
                  ベルハイム 【インターネット使い放題】 
                  102号室
                    新潟県長岡市平島2丁目165番地
                    (アパート・マンション・一戸建て)
                    43.89㎡
                    (13.27坪)
                    2K
                    1階
                    38年
                    3.8万円
                    なし
                    なし
                    5万円
                    なし
                    なし
                    写真たくさんあり!!
                    ドン・キホーテまで徒歩2分 ペッ有有は礼金1ヶ月、敷金1ヶ月です。
                    物件画像
                    物件画像
                    物件画像
                    物件画像
                    詳細☆お気に入り★お気に入り
                    オーベルジュ福山A103
                    103号室
                      新潟県長岡市福山町1043
                      (アパート・マンション・一戸建て)
                      29.47㎡
                      (8.91坪)
                      1K
                      1階
                      33年
                      3.8万円
                      なし
                      なし
                      1ヶ月
                      なし
                      なし
                      写真たくさんあり!!
                      フリーレント1ヶ月分(1ヶ月分賃料サービス)※御契約時にお申し出下さい。
                      物件画像
                      物件画像
                      物件画像
                      物件画像
                      詳細☆お気に入り★お気に入り
                      サニーレジデンスⅢ
                      502号室
                      • 新着
                      新潟県長岡市旭町2-3-25
                      (アパート・マンション・一戸建て)
                      23.18㎡
                      (7.01坪)
                      1DK
                      4階
                      40年
                      3.8万円
                      なし
                      なし
                      1ヶ月
                      なし
                      1.1ヶ月
                      写真たくさんあり!!
                      エコトピア寿近く
                      物件画像
                      物件画像
                      物件画像
                      物件画像
                      詳細☆お気に入り★お気に入り
                      ハイツサクセス
                      102号室
                        長岡市寿3丁目3-64
                        (アパート・マンション・一戸建て)
                        26.16㎡
                        (7.91坪)
                        1K
                        1階
                        27年
                        3.8万円
                        2,000円/月
                        なし
                        1ヶ月
                        なし
                        なし
                        写真たくさんあり!!
                        ☆駐車場1台無料です♪☆
                        物件画像
                        物件画像
                        物件画像
                        物件画像
                        詳細☆お気に入り★お気に入り
                        エクセレント川崎
                        103号室
                          新潟県長岡市川崎1丁目272
                          (アパート・マンション・一戸建て)
                          25㎡
                          (7.56坪)
                          1K
                          1階
                          35年
                          3.8万円
                          なし
                          なし
                          1ヶ月
                          なし
                          なし
                          写真たくさんあり!!
                          雪の時期便利な消雪パイプ有りの駐車場です!
                          物件画像
                          物件画像
                          物件画像
                          物件画像
                          詳細☆お気に入り★お気に入り
                          クリーミーハウス
                          203号室
                            上越市戸野目488
                            (アパート・マンション・一戸建て)
                            44.61㎡
                            (13.49坪)
                            1K
                            2階
                            30年
                            3.8万円
                            なし
                            なし
                            なし
                            なし
                            なし
                            写真たくさんあり!!
                            フリーレント1ヶ月分(1ヶ月分賃料サービス)※御契約時にお申し出下さい。
                            物件画像
                            物件画像
                            物件画像
                            物件画像
                            詳細☆お気に入り★お気に入り
                            サニーレジデンスⅢ
                            701号室
                              新潟県長岡市旭町2-3-25
                              (アパート・マンション・一戸建て)
                              23.18㎡
                              (7.01坪)
                              1DK
                              6階
                              40年
                              3.8万円
                              なし
                              なし
                              1ヶ月
                              なし
                              なし
                              写真たくさんあり!!
                              長岡造形大学近くの物件です♪
                              物件画像
                              物件画像
                              物件画像
                              物件画像
                              詳細☆お気に入り★お気に入り
                              ハイツこぶし
                              101号室
                                新潟県長岡市蓮潟4丁目5-15
                                (アパート・マンション・一戸建て)
                                26.85㎡
                                (8.12坪)
                                2K
                                1階
                                33年
                                3.8万円
                                なし
                                あり
                                なし
                                なし
                                なし
                                写真たくさんあり!!
                                インターネット使いたい放題!(月額3,630)
                                物件画像
                                物件画像
                                物件画像
                                物件画像
                                詳細☆お気に入り★お気に入り
                                レオネクスト アンジェAB棟
                                B104号室
                                • 未入居
                                新潟県上越市大潟区 九戸浜261-122
                                (アパート・マンション・一戸建て)
                                23.61㎡
                                (7.14坪)
                                1K
                                1階
                                15年
                                3.8万円
                                4,000円/月
                                -
                                なし
                                なし
                                1ヶ月
                                直江津方面で一人暮らしをされる方にお勧めです!
                                物件画像
                                物件画像
                                物件画像
                                物件画像
                                詳細☆お気に入り★お気に入り
                                メゾンローザ
                                105号室
                                  新潟県上越市安江63番地7
                                  (アパート・マンション・一戸建て)
                                  22.9㎡
                                  (6.92坪)
                                  1K
                                  1階
                                  28年
                                  3.8万円
                                  なし
                                  なし
                                  1ヶ月
                                  なし
                                  なし
                                  写真たくさんあり!!
                                  融雪駐車場1台
                                  物件画像
                                  物件画像
                                  物件画像
                                  物件画像
                                  詳細☆お気に入り★お気に入り
                                  パティイーストB
                                  217号室
                                    新潟県長岡市中沢3-566-2
                                    (アパート・マンション・一戸建て)
                                    28.6㎡
                                    (8.65坪)
                                    1K
                                    2階
                                    28年
                                    3.8万円
                                    なし
                                    なし
                                    1ヶ月
                                    なし
                                    なし
                                    写真たくさんあり!!
                                    来迎寺駅徒歩1分と好立地 テンキーロック、ロフト付ワンルーム。 駅近なので車をお持ちでない方でも電車・バスを利用して多方面へお出かけできます♪
                                    物件画像
                                    物件画像
                                    物件画像
                                    物件画像
                                    詳細☆お気に入り★お気に入り
                                    アーバンコーポフジⅡ 
                                    101号室
                                      新潟県長岡市来迎寺1935-1
                                      (アパート・マンション・一戸建て)
                                      24.78㎡
                                      (7.49坪)
                                      1R
                                      1階
                                      26年
                                      3.8万円
                                      なし
                                      なし
                                      1ヶ月
                                      なし
                                      なし
                                      写真たくさんあり!!
                                      VRビューあり!!
                                      動画あり!!
                                      バーチャルツアーあり!!
                                      表示切替: 一覧表示 地図表示    並び替え:
                                      0件がマッチ
                                      基本条件
                                      物件種別 アパート・マンション・一戸建て
                                      詳細種別
                                      賃料


                                      間取り
                                      所在階
                                      面積
                                      築年数
                                      方位
                                      おすすめ条件
                                      情報公開日
                                      0件がマッチ
                                      人気のあるこだわり条件